切换到宽版
  • 71阅读
  • 1回复

[奇观]钟公庙中心小学保丰校区 / 宁波市民用建筑设计研究院[31P] [复制链接]

上一主题 下一主题
在线jjybzxw

UID: 551814

 

发帖
215165
金币
636139
道行
2006
原创
2442
奖券
3260
斑龄
41
道券
1197
获奖
0
座驾
设备
摄影级
在线时间: 46919(小时)
注册时间: 2008-10-01
最后登录: 2025-12-31
— 本帖被 huozm32831 执行加亮操作(2025-12-25) —

关键字:全天候联通、学习社区、教育基座、多层次绿化庭院、立面金属构件
01.
项目背景:
在用地局限中回应学位需求
项目启动于2021年,源于区域学位紧张与未来人口增长的明确预期。我们面临的核心挑战是:如何在仅满足浙江省36班完全小学二类标准的规划用地上,建设一所42班规模的学校,并使之符合现代教育理念。

△校园西南角鸟瞰
02.
总体规划:
高效组织与全天候联通
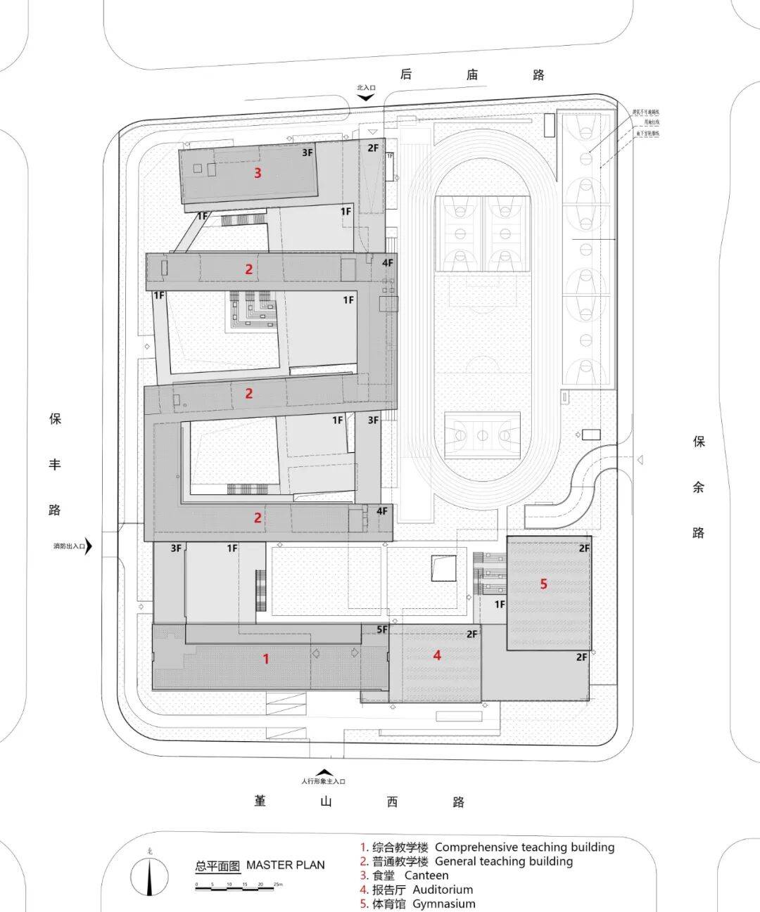
为应对扩容,我们将原定300米田径场压缩为250米,为建筑布局释放更多空间。校园建筑被清晰划分为三个区域:南侧横向展开的综合教学楼、报告厅与体艺馆,各个体块的咬合形成校园主入口形象,同时在南向留出前广场缓冲空间,降低对城市交通的压力;北侧临近后勤出入口布置食堂,减少对日常教学的干扰;中间以反向S型平面布置普通教学楼与教师办公室,在满足日照间距的同时,自然围合出多层次庭院空间。

△退让城市道路的缓冲空间和校园南立面

△报告厅外大台阶看田径场

△一二层都可以便捷到达的食堂
我们同步构建了立体的交通与功能系统。在操场下方设置了地下室,容纳停车与专用的地下学生接送区域。车辆可直接进入地下接送区,实现与地面人车的完全分流,极大缓解了上下学时段对城市道路的交通压力。地下接送区通过楼梯,能便捷地到达每一栋教学楼。设计中还植入了一个小型下沉庭院,将自然光线与新鲜空气引入地下空间,显著改善了等候区的环境品质,体现了对使用者细致的人文关怀。

△地下接送等候区的下沉庭院

△从下沉庭院边上看到体艺馆和报告厅外的大台阶
针对江南多雨的气候特点,地面层面的“无风雨线性链接”系统与地下系统相辅相成。从主入口开始,通过连贯的廊道与架空层,将三大功能区域无缝衔接,形成覆盖全校的遮蔽网络。师生无论在晴天或雨天,均可通过地上或地下的舒适路径,便捷地到达所有教学与活动空间,实现了真正的全天候校园联通与活动自由。

△教学楼之间加宽的连廊

△从运动场看教学楼之间的线性链接
03.
首层学习社区:
打造开放共享的“教育基座”
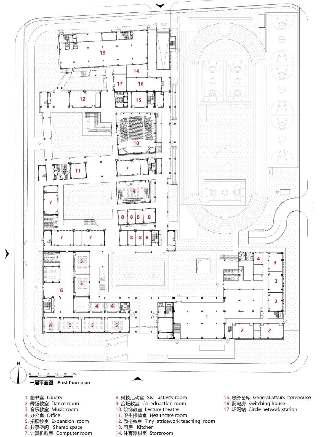
我们有意将首层层高抬升至4.7米,并将其整体规划为一个跨年级、跨学科的“学习社区”。这里集中布置了图书馆、专业教室、合班教室等大空间教学用房,并通过多处连续的架空与开放设计,打破了传统走廊的封闭感。这一层不仅是“无风雨系统”的重要枢纽,更成为了学生可自由穿梭、相遇、进行项目式学习与社交的活跃基座,以开放的空间形态鼓励非正式的学习与互动发生。


△架空层的社交活动区

△与架空空间串联的庭院一角

△架空层的风雨跑道
04.
庭院与生态系统:
立体交织的自然滋养
建筑布局自然生成了一系列各具特色的庭院,并与立体绿化系统紧密结合,共同构成校园的生态与景观核心:

△二层平台的树池和互动空间
地面庭院序列:
从南入口的仪式性中庭,到教学区内的“葱绿小院”(自然植被)和“森之舞台”(大台阶活动场),再到北侧寓意“桃李满园”的果木庭院,这些庭院提供了从礼仪到教学、从活动到休憩的多样化户外空间。

△南入口的仪式性中庭景观

△教学楼之间的“葱绿小院”景观庭院

△教学楼之间的“森之舞台”景观庭院

△教学楼与食堂之间的果木庭院
立体绿化延伸:
绿化不止于地面。我们巧妙地将绿化向垂直维度延伸,在二层活动平台设置绿化树池,并充分利用屋顶空间打造“屋顶农场”。这使得生态景观成为建筑的多维表皮,劳动教育得以融入环境,形成了从地面庭院、平台花园到空中农场的多层级绿色生态系统,让自然触手可及。

△综合楼和教学楼之间的活动平台和树池

△教学楼之间的活动平台和树池
05.
立面与材质:
营造轻盈开放的校园气质
立面采用涂料与金属构件相结合的方式。金属构件的运用提升了建筑的精细度与轻盈感,局部点缀的黄绿色彩则打破了传统教学建筑的肃穆印象,以活泼、通透的视觉语言,传递出开放、现代的校园氛围。

△报告厅的绿色穿孔板和灰色凹凸铝板金属外立面

△综合楼和报告厅的体块穿插

△透过二层平台艺术装置看到的综合楼立面局部

△赋有韵律感的轻盈立面

△田径场看台融于建筑架空的下部空间
06.
结语
本项目最终是在用地局限、班额扩张与现代教育理念的多重要求间寻求平衡的产物。我们希望通过清晰的功能组织、丰富的空间层次与人性化的细部设计,在有限条件下,营造一处既能高效运转,又能滋养学习与成长体验的校园环境。

△校园东北角鸟瞰
技术图纸

△总平面图

△首层平面图

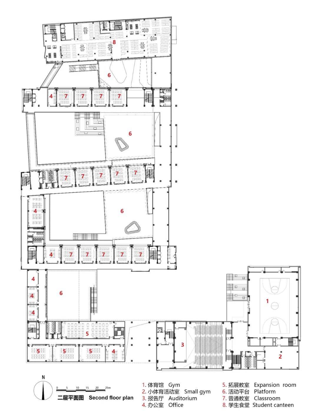
△二层平面图

△地下室平面图

△立面图

△看台处墙身大样
项目业主:宁波市鄞州区南部新城建设管理有限公司
项目地址:宁波市鄞州区钟公庙街道堇山西路276号
用地面积:32283㎡
建筑面积:42450㎡(地上32095㎡,地下10355㎡)
设计单位:宁波市民用建筑设计研究院有限公司
设计建设时间:2021.7-2025.6
[ 此帖被jjybzxw在2025-12-25 11:28重新编辑 ]
1条评分金币+20
huozm32831 金币 +20 - 12-25
山庄提示: 道行不够,道券不够?---☆点此充值☆
 
在线jjybzxw

UID: 551814


发帖
215165
金币
636139
道行
2006
原创
2442
奖券
3260
斑龄
41
道券
1197
获奖
0
座驾
设备
摄影级
在线时间: 46919(小时)
注册时间: 2008-10-01
最后登录: 2025-12-31
只看该作者 沙发  发表于: 12-25
Re:中心小学保丰校区 / 宁波市民用建筑设计研究院[31P]
基于关键字的深度解析:宁波鄞州小学的“未来校园”实践  
——以全天候联通、学习社区、教育基座、多层次绿化庭院、立面金属构件为核心的设计逻辑  
一、全天候联通:空间效率与气候适应的双重回应  
1. 立体交通系统的构建  
地下接送系统:通过操场下方的地下室设置专用接送区,实现人车分流,缓解上下学时段对城市道路的压力。下沉庭院引入自然光与通风,提升地下空间品质,体现人文关怀。  
地面无风雨路径:以连贯的廊道与架空层串联三大功能区(教学楼、报告厅、体艺馆),形成覆盖全校的遮蔽网络。加宽的连廊与线性链接设计,确保师生在雨天也能自由通行,实现“全天候校园联通”。  

2. 空间效率的极致化  
田径场压缩与功能整合:将原定300米田径场缩减至250米,释放空间用于建筑布局,同时通过反向S型教学楼设计满足日照间距,自然围合出多层次庭院。  
垂直功能叠加:首层抬升至4.7米,打造跨年级、跨学科的“学习社区”,将图书馆、专业教室等大空间教学用房集中布置,减少垂直交通压力,提升空间使用效率。  
二、学习社区与教育基座:非正式学习空间的革命  
1. 首层作为“教育基座”的开放设计  
打破传统走廊的封闭感:通过连续的架空与开放设计,将首层转化为可自由穿梭的社交场所。学生在此进行项目式学习、互动交流,空间形态鼓励非正式学习行为的发生。  
功能复合性:学习社区整合了图书馆、合班教室、专业教室等功能,形成资源共享的“教育枢纽”。架空层的风雨跑道、社交活动区等设计,进一步拓展了学习场景的多样性。  

2. 与庭院系统的互动  
庭院作为学习场景的延伸:首层学习社区与地面庭院(如“葱绿小院”“森之舞台”)通过架空层串联,形成室内外无缝衔接的学习网络。学生在庭院中观察自然、开展活动,实现“在环境中学习”。  
三、多层次绿化庭院:生态与教育的立体融合  
1. 地面庭院的序列化设计  
仪式性中庭:南入口的仪式性中庭以礼仪功能为主,奠定校园空间秩序。  
教学区庭院:“葱绿小院”(自然植被)与“森之舞台”(大台阶活动场)提供教学与休憩空间,满足学生日常活动需求。  
果木庭院:北侧的果木庭院以“桃李满园”为寓意,结合劳动教育,形成具有文化象征意义的生态空间。  

2. 立体绿化的多维延伸  
垂直绿化:二层活动平台设置树池,将绿化向垂直维度延伸,软化建筑边界。  
屋顶农场:利用屋顶空间打造“空中农场”,将劳动教育融入环境,形成从地面到庭院、从平台到屋顶的多层级绿色生态系统。  
四、立面金属构件:轻盈感与现代性的视觉表达  
1. 材质对比与精细度提升  
涂料与金属的结合:立面以涂料为基础,通过金属构件(如穿孔板、凹凸铝板)的点缀,提升建筑的精细度与轻盈感。  
色彩策略:局部采用黄绿色彩,打破传统教学建筑的肃穆印象,传递开放、现代的校园氛围。  

2. 功能与美学的统一  
金属构件的实用性:如报告厅的绿色穿孔板外立面,既满足通风需求,又形成独特的视觉韵律。  
体块穿插的立体感:综合楼与报告厅的体块穿插设计,通过金属构件的勾勒,强化建筑的层次感与动态美。  
五、结语:用地局限下的“未来校园”范式  
本项目在用地紧张、班额扩张与现代教育理念的多重约束下,通过以下策略实现了空间效率与教育品质的平衡:  
1. 立体化设计:从地下接送系统到屋顶农场,最大化利用垂直维度,拓展校园功能。  
2. 人性化细节:无风雨路径、下沉庭院、架空层社交空间等设计,体现对师生需求的深度关怀。  
3. 生态与教育融合:多层次绿化庭院与立体绿化系统,将自然纳入教育场景,构建可持续发展的校园生态。  
4. 现代美学表达:立面金属构件与色彩策略,赋予校园轻盈、开放的视觉形象,呼应现代教育理念。  

项目信息  
业主:宁波市鄞州区南部新城建设管理有限公司  
地址:宁波市鄞州区钟公庙街道堇山西路276号  
规模:用地面积32,283㎡,建筑面积42,450㎡(地上32,095㎡,地下10,355㎡)  
设计单位:宁波市民用建筑设计研究院有限公司  
设计建设时间:2021.7-2025.6  

这一项目不仅是对用地局限的突破,更是一次对“未来校园”模式的探索,为现代教育空间设计提供了可借鉴的范本。
1条评分金币+6
huozm32831 金币 +6 - 12-25
如何不发帖就快速得到金币道行
 
快速回复
限120 字节
认真回复加分,灌水扣分~
 
上一个 下一个