切换到宽版
  • 5阅读
  • 1回复

[奇观]上海江浦路街道辽源社区党群服务中心 / 上海日清建筑设计[41P] [复制链接]

上一主题 下一主题
在线jjybzxw

UID: 551814

 

发帖
210819
金币
602868
道行
2006
原创
2438
奖券
3180
斑龄
40
道券
1167
获奖
0
座驾
设备
摄影级
在线时间: 46293(小时)
注册时间: 2008-10-01
最后登录: 2025-12-14
只看楼主 倒序阅读 使用道具 楼主  发表于: 6小时前

街角,是城市的缩影,也是故事的起点。
在这里,道路交汇,人流穿梭,时光沉淀;
在这里,建筑与生活对话,设计与日常相融。
日清设计,以专注之心观察每一处街角的脉动,
用建筑的语言,回应城市的记忆与未来的想象。
我们相信,好的设计不仅是空间的塑造,
更是对生活痕迹的珍藏,对城市温度的传递。
那些被日清赋予新生的街角,
或许是转角的一抹光影,或许是砖石间的细腻叙事,
它们安静地矗立,却让城市有了更生动的表情。
和我们一起,发现街角的诗意,
感受设计如何让寻常之地,生出不寻常的故事。
日清的街角
—— 让城市,更有温度。

“人类记忆绝非个体能力,而是由我们所属的群体塑造的社会实践。我们记忆什么、如何记忆,均由社区提供的共享意义框架决定。”
莫里斯・哈布瓦赫,《论集体记忆》
日清设计在走过的25年历程中,始终紧密跟随中国城市更新的步伐和脉络,尤其是在上海,这样一座我们熟悉却又日新月异的城市。但是参与到城市设计这一过程,在大部分的时间地点以及机缘上,未必是我们这样一家民营的,商业化的设计事务所能够主动选择;例如本项目的过程,就来源于一个客观实际的地产委托项目:在2019年保利发展通过招拍挂流程获取土地之后,我们通过竞标方式,拿下本项目的设计主导权;但是今天来看,它有着特别典型的两个特点;第一点在于在当时的市场语境下,它加持了非常大的城市更新的内容,有较高的社会价值比重。在要完成所有的常规代建规定动作(5%保障房,15%持有型租赁公寓,一定比例的不计容社区配套)之外,还兼有街心公园绿化的代建,专业养老院代建,以及社区文体活动中心的代建等,可说是buff叠满,规模空前。这也反映出杨浦在城市更新,社区配套设施改造上的迫切需求。
另一方面,它位于杨浦内环内,街道肌理紧密逼仄,功能需求和用地条件的矛盾是非常突出。作为一个持续时间长达7年,方案团队始终保持有极高参与热情的项目,它既是一个适合长期观察的,功能始终在动态变化着的城市更新样板,也是一个考验设计团队的前中后期跟进配合能力,考验项目最终落地效果,是否能够实现最初的城市更新远景,能够得到市民们好评的建筑师的重要标尺——普遍而言,在项目启动伊始,我们拿到的只有规划层面的纸面数据,而最终的实际运营要求一概欠奉;人民坊究竟有哪些功能要求,社区食堂的配置标准怎样,作为新的课题,在当时都没有先例,这对于商业化运营的设计团队而言是严峻的考验。
项目所在用地的前身是曾经作为上海轻工业旗帜的上海永久自行车厂,一度年产340万辆自行车而兴盛一时。大礼堂的电影和演出,街坊邻里熟识的场景,企业屡获殊荣的满载荣光,是老一代杨浦人的珍贵记忆。然而首次踏访现场,周边街道氛围沉寂而单调,地块内堆砌着成千上万的共享单车,随着互联网热潮的退却被遗忘堆砌于此。时过境迁,历史和现实之间开了一个尴尬的玩笑。空中俯瞰,长期空置的土地以及周边尚未动迁的老旧街巷夹杂在现代化的高层社区和绿荫街道之间,就如致密的上海城市肌理中的一块疤痕,亟待缝合织补。空间肌理需要缝补、街道功能需要重组、新老居民的关系需要重建,是设计开展所需要解决的问题。

鸟瞰实景图
在高密度城市更新与工业遗产保护的双重语境下,上海杨浦区江浦人民坊以原上海永久自行车厂旧址为载体,实现了从闲置工业遗存向全龄共享公共空间的转型。
01.
场地认知与更新逻辑:基于工业记忆的空间重构起点
场地基因与历史语境
项目用地位于杨浦区打虎山路与辽源西路交汇处,其历史脉络可追溯至1940年的昌和制作所,1958年正式成为上海永久自行车厂核心厂区,1986年在此成立中国自行车行业首家企业集团。作为民族工业符号,“永久”自行车不仅承载“上得国礼、下得赛场、进得战场”的产业价值,更因大礼堂文艺汇演、街坊露天电影、师徒技术传承等场景,形成老杨浦人“以厂为家”的集体记忆,“永久为民”的精神内核成为场地独有的文化基因。

原永久自行车厂旧址
20世纪90年代产业结构调整后,工厂搬离导致用地荒废,场地一度沦为共享单车堆放场,陷入“空间闲置—活力衰退—记忆流失”的连锁困境:一方面,12-15米宽的老城区街道界面断裂,建筑密度过高导致公共空间稀缺;另一方面,周边“低矮生活区与新建高楼”的风貌割裂,进一步削弱了街区的场所认同感,使场地与居民的情感联结逐渐淡化。

场地原始实景图
更新原则
设计以三项更新原则为核心:
记忆延续性:拒绝工业符号的“复刻式”表达,转而通过场景唤醒与细节植入,实现工业记忆的当代转译。
空间公共性:打破传统社区设施的封闭性,构建“建筑—街道—庭院”一体化的连续 公共空间体系。
功能适配性:以“全龄友好”为目标,通过分层化、场景化的功能布局,回应不同人群的日常需求。

宋照青手绘草图

鸟瞰实景图
02.
形态设计:老城区肌理的柔和缝合策略
针对老城区街道逼仄、空间紧张的现状,设计采用“低姿态介入”的形态策略,通过体量控制、材质呼应与开放节点设置,实现建筑与既有环境的共生。


与老街区关系实景图
体量与界面整合
建筑沿打虎山路、辽源西路以流畅弧形体量展开,替代传统直角形态,有效修补断裂的街道界面。主体建筑高度控制为5层,和辽源西路周边的多层住宅建筑形成平视、街道围合的关系,沿辽源西路一侧适度内退,形成150平方米的缓冲广场,搭配镂空弧形挡墙,有效削弱建筑体量对周边6-8层老旧公房的视觉压迫;同时住区和商业部分,也特别选用较少炫光反射、色调较典雅的咖色系浅灰铝板,能够和周边植被和紧密环绕的周边已有高层建筑融合而不突兀。

体量生成分析图

沿街小广场实景图

立面细节实景图
立面采用“浪花状”错动造型,通过氟碳喷涂铝单板与双超白钢化夹层玻璃的交替组合,在阳光下形成动态光影,将建筑体量拆解为近人尺度的视觉单元,避免现代建筑与老城区风貌产生割裂。


立面实景图

立面实景图
开放节点设计
在打虎山路与辽源西路交叉口设置圆形转角广场,搭配半开放曲线形入口与三角形雨篷,形成“街角—广场—入口”三级过渡空间。该节点不仅是交通枢纽,更通过保留的高大梧桐树与休憩设施,成为居民驻足、交往的“城市驿站”,实现建筑边界向街道生活的自然延伸。
街角位置的总图关系,实际上突破了城市规划条例,对于街角建筑退让距离的传统理解。我们在争取了规划部门同意的基础上,尊重原有的道路退让逻辑,沿着街角道路做弧性等距退让,这样保证了路口四角关系的一致性,不会因为新建用地,新的规划原则而给历史悠久的街道空间带来陌生感和唐突感。



入口实景图
03.
功能建构:全龄需求导向的场景化布局
早期的文体中心兼顾了销售住宅的示范展示功能,以内向的庭院空间,满足了喧闹街道和陈列展示之间的矛盾规避。在内部空间也布置有光电互动效果的艺术装置,获得了使用者的好评;



早期庭院实景图
在结束了销售功能之后,以人群实际需求为线索,我们将建筑空间转化为相互关联的功能场景集群,通过分层聚焦与跨层互动,构建覆盖全龄的公共服务体系,避免了传统分层布局的生硬感,促进不同年龄使用者在空间中自然相遇与互动。


沿街小广场实景图
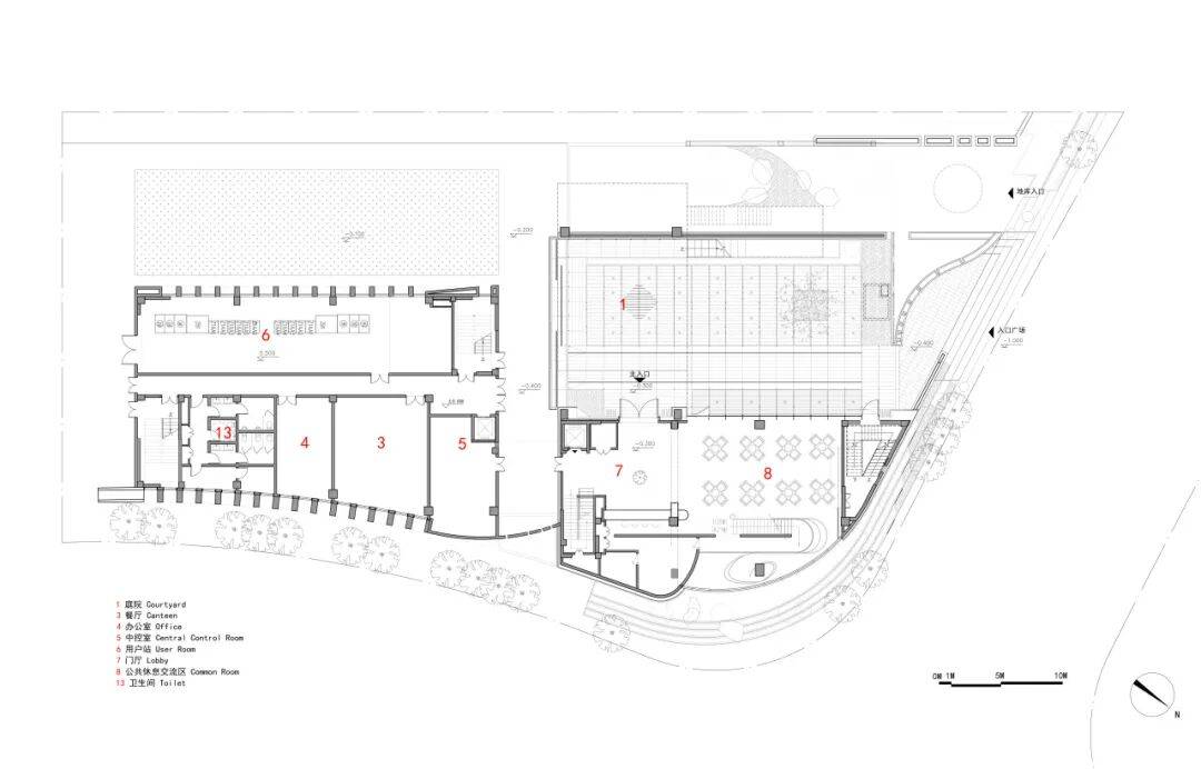
街角活力聚合层——公共性的第一触点
作为社区与城市对话的核心界面,首层以“开放共享”为原则,构建多元场景下的聚合场域:“江心暖新”会客厅配备可移动会议桌,适配居民议事、党群活动等需求,提升社区参与度;9.9元平价咖啡馆以低定价策略降低公共空间使用门槛,成为跨年龄社交的非正式场所;500平方米共享庭(人人会客厅)采用黑白相间透水砖铺地,其四级观演大阶梯兼具消防通道与露天舞台功能,每周五晚举办露天电影放映,可容纳约200人,重现老厂区邻里共赏的集体记忆场景。


客厅实景图

露天庭院

露天庭院活动实景图
亲子成长与记忆传承层——代际对话的媒介
设计聚焦儿童成长与工业记忆传承,通过功能邻近性促进代际互动:200平方米儿童服务中心配备圆角家具与益智设施,未成年人保护工作站提供心理辅导与权益保障;江浦路街道图书馆少儿分馆藏书约5000册,书架高度控制在1.2-1.5米,贴合儿童使用习惯;爱心妈咪小屋设置哺乳沙发与婴儿护理台;“印象台—永久记忆馆”与儿童活动区相邻,展陈老厂区照片、自行车模型及复刻生产工具,兼顾老年人坐姿观展与青少年互动体验,实现“成长”与“传承”的场景融合。

儿童活动空间实景图
康养与便民服务层——民生需求的精准响应
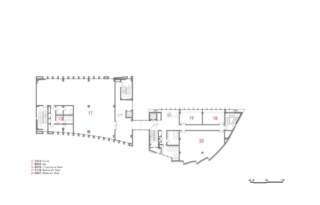
3-4层形成“康养 + 便民”复合功能集群,聚焦老年群体与全龄基础服务:3层综合为老服务中心提供助餐、康复咨询与老年大学课程;长者运动健康之家配备适老化器材,地面铺设防滑地胶,走廊扶手高度0.85米,保障使用安全;残疾人阳光康健驿站预留1.2米宽轮椅通道与无障碍卫生间,贯彻“老有所养、残有所助”;市民健康驿站配备血压仪、体脂秤等基础医疗设备,定期开展免费健康检测;多功能教室采用可移动桌椅,适配手工培训、烹饪课程等多样化场景;物业办公室紧邻主要功能区,确保响应时间不超过15分钟,保障场地运营效率。

健身房实景图
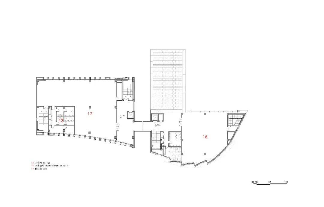
文化活动与休闲层——社群精神的承载
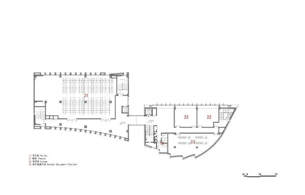
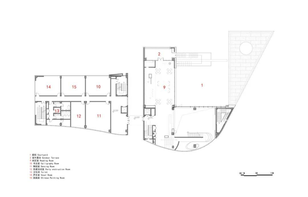
5层作为社区文化高地,通过专业设施与弹性空间承载社群精神需求:共享小剧场配备专业声学设备、舞台与折叠座椅,适配社区演出、节日庆典等活动;共享会议室配备高清投影与视频会议系统,满足团体议事需求;共享展厅采用可移动展板,定期更新居民创作与“永久”主题展;“梦享园—休闲人文苑”搭配绿植与观景平台,俯瞰街角与内庭景致,为文化活动提供舒缓过渡空间。

永久自行车厂-主题展览
配套服务延伸层——15分钟生活圈的补充
利用地下空间缓解老城区“停车难”问题:辽源党群服务中心停车库开放50个社会共享泊位,采用“错峰停放”机制,提升资源利用率;“司机客厅”提供饮水、充电与临时休息区,服务通勤人群,使地下空间成为有温度的便民节点,完善了15分钟社区生活圈配套体系。

街景实景图
04.
结语
商业化运营的建筑方案设计团队,对于用地红线周边,城市街道空间品质的关注往往缺乏自觉性。但在对标国际一线同行的设计实践过程中,我们能体会到公共和开放性对于项目价值未来成长的重要性,例如罗杰斯事务所在伦敦泰晤士河畔的Neo bankside项目,以及海德公园一号项目,都是将城市景观、公园和城市、住区的功能,实现无缝衔接的典型案例;我们也希望随着该地段未来的功能成熟,面貌更新,能够减少地产开发行为和周边居民日常起居生活的情绪对立;能带动江浦社区整个区域的能级提升;能够为我们传统市场语境下的“地段”逻辑增添价值。这也是本项目的首席建筑师宋照青,作为新天地项目曾经的参与者的切身体会。
保利天汇项目,以及江浦路街道辽源社区党群服务中心的街区整体更新实践,为老工业城区既有场地更新提供了多方面启示:记忆活化的“轻量级”路径:无需依赖工业遗存实体复刻,通过场景唤醒与细节植入,使历史记忆与当代生活自然融合,避免“博物馆式保护”带来的疏离感;全龄共享的“场景化”逻辑:以人群需求为线索,通过分层聚焦与跨层互动,构建连接不同年龄群体的空间纽带;街道活力的“微激活”范式:在有限空间内,通过形态织补与功能植入,将闲置街角转化为社区枢纽,为高密度城区更新提供“小空间大作为”的可复制经验。
项目的核心价值在于:以设计为媒介,让“永久为民”的工业精神在当代社区中以“服务共享”的形式延续,让建筑不仅是空间的容器,更是承载城市记忆、凝聚社区认同的“有温度的公共载体”,让街道空间温暖,睦邻和谐安宁;街区能级提升,地段价格增值。从而最终实现我们项目伊始的期许:为老杨浦注入新的活力,为历史悠久的街道,擦亮美好生活的街灯。
技术图纸

一层平面图

二层平面图

三层平面图

四层平面图

五层平面图

1-1剖面图

2-2剖面图

东立面

南立面图

西立面图

北立面图
工程档案
项目名称 | 保利·天汇展示区暨江浦路街道辽源社区党群服务中心
业主单位 | 保利发展
项目地点 | 上海杨浦区辽源西路打虎山路
项目功能 | 住宅 租赁公寓 文体中心 养老院
总建筑面积 | 130538.49 ㎡
容积率 | 2.5
设计时间 | 2019年5月—2020年5月
施工时间 | 2020年—2023年
建筑设计 | 上海日清建筑设计有限公司
景观设计 | 杭州安道景观与建筑设计有限公司/上海日清景观设计有限公司
施工图设计 | 上海中房建筑设计有限公司
幕墙设计 | 中南幕墙 TAM茅建会
主持建筑师 | 宋照青
设计团队 | 蔡兢凯 郭丹 王玉戈 刘悦怡 于璐 王玥明 周显寅 寿劲松 胡天玖 苏衍博 闫雷 吴明 田正韬 曾诗如 张曼 王龙 沈蓓瑾 黄艺辉 邹丽娜 吴旻琪 王泽暄 曾少鹏
业主方设计团队 | 马建安 陈慧玲 崔展铭 孙二奇 黄施嘉 陈庆艳
山庄提示: 道行不够,道券不够?---☆点此充值☆
 
在线jjybzxw

UID: 551814


发帖
210819
金币
602868
道行
2006
原创
2438
奖券
3180
斑龄
40
道券
1167
获奖
0
座驾
设备
摄影级
在线时间: 46293(小时)
注册时间: 2008-10-01
最后登录: 2025-12-14
只看该作者 沙发  发表于: 5小时前
上海杨浦江浦人民坊:工业遗存到全龄共享空间的华丽转身
引言
街角,作为城市的缩影与故事的起点,承载着城市的记忆与未来。日清设计,以专注之心观察街角脉动,用建筑语言回应城市记忆与想象。在上海这座日新月异的城市,日清设计紧跟城市更新步伐,以保利·天汇展示区暨江浦路街道辽源社区党群服务中心项目为例,展现了其在城市更新领域的卓越实践。该项目不仅承载着老工业城区的记忆,更通过创新设计,实现了从闲置工业遗存向全龄共享公共空间的转型,为城市更新提供了宝贵经验。
项目背景与挑战
项目缘起
2019 年,保利发展通过招拍挂获取土地,日清设计通过竞标赢得设计主导权。此项目具有显著特点,一方面,市场语境下加持大量城市更新内容,社会价值比重高。除完成常规代建规定动作,如 5%保障房、15%持有型租赁公寓、一定比例不计容社区配套外,还需代建街心公园绿化、专业养老院、社区文体活动中心等,规模空前,反映出杨浦在城市更新和社区配套设施改造上的迫切需求。另一方面,项目位于杨浦内环内,街道肌理紧密逼仄,功能需求与用地条件矛盾突出。
场地历史与现状
项目用地前身是上海永久自行车厂,曾年产 340 万辆自行车,是老一代杨浦人的珍贵记忆。大礼堂的电影演出、街坊邻里场景、企业荣誉等,构成了“以厂为家”的集体记忆和“永久为民”的精神内核。然而,产业结构调整后,工厂搬离,用地荒废,沦为共享单车堆放场,陷入“空间闲置—活力衰退—记忆流失”的困境。周边街道氛围沉寂单调,老城区街道界面断裂,建筑密度过高,公共空间稀缺,风貌割裂,场所认同感削弱,与居民情感联结逐渐淡化。
设计理念与原则
场地认知与更新逻辑
设计以工业记忆为空间重构起点,基于场地基因与历史语境展开。认识到“永久”自行车承载的产业价值和集体记忆,针对场地陷入的连锁困境,提出更新逻辑。以记忆延续性、空间公共性、功能适配性为核心更新原则,拒绝工业符号“复刻式”表达,通过场景唤醒与细节植入实现工业记忆当代转译;打破传统社区设施封闭性,构建一体化连续公共空间体系;以“全龄友好”为目标,通过分层化、场景化功能布局回应不同人群日常需求。
形态设计策略
针对老城区街道逼仄、空间紧张现状,采用“低姿态介入”形态策略。通过体量控制、材质呼应与开放节点设置,实现建筑与既有环境共生。以流畅弧形体量修补断裂街道界面,控制建筑高度,适度内退形成缓冲广场,搭配镂空弧形挡墙,削弱视觉压迫;选用咖色系浅灰铝板,与周边环境融合;立面采用“浪花状”错动造型,通过不同材质交替组合,形成动态光影,拆解建筑体量,避免与老城区风貌割裂。
功能布局与特色
分层功能布局
项目以人群实际需求为线索,将建筑空间转化为相互关联的功能场景集群,通过分层聚焦与跨层互动,构建覆盖全龄的公共服务体系。
街角活力聚合层:首层以“开放共享”为原则,构建多元场景聚合场域。“江心暖新”会客厅配备可移动会议桌,适配多种需求;9.9 元平价咖啡馆降低公共空间使用门槛;500 平方米共享庭(人人会客厅)的四级观演大阶梯兼具消防通道与露天舞台功能,每周五晚举办露天电影放映,重现集体记忆场景。
亲子成长与记忆传承层:聚焦儿童成长与工业记忆传承,通过功能邻近性促进代际互动。200 平方米儿童服务中心配备圆角家具与益智设施;“印象台—永久记忆馆”与儿童活动区相邻,展陈老厂区相关物品,实现“成长”与“传承”场景融合。
康养与便民服务层:3 - 4 层形成“康养 + 便民”复合功能集群。3 层综合为老服务中心提供多种服务;长者运动健康之家配备适老化器材;残疾人阳光康健驿站预留无障碍设施;市民健康驿站配备基础医疗设备;多功能教室采用可移动桌椅;物业办公室紧邻主要功能区,保障运营效率。
文化活动与休闲层:5 层作为社区文化高地,通过专业设施与弹性空间承载社群精神需求。共享小剧场配备专业设备;共享会议室配备高清投影与视频会议系统;共享展厅采用可移动展板;“梦享园—休闲人文苑”搭配绿植与观景平台,为文化活动提供舒缓过渡空间。
配套服务延伸层:利用地下空间缓解“停车难”问题。辽源党群服务中心停车库开放 50 个社会共享泊位,采用“错峰停放”机制;“司机客厅”提供饮水、充电与临时休息区,完善 15 分钟社区生活圈配套体系。
开放节点设计
在打虎山路与辽源西路交叉口设置圆形转角广场,搭配半开放曲线形入口与三角形雨篷,形成“街角—广场—入口”三级过渡空间。该节点不仅是交通枢纽,还通过保留高大梧桐树与休憩设施,成为居民驻足、交往的“城市驿站”,实现建筑边界向街道生活自然延伸。同时,突破城市规划条例对街角建筑退让距离的传统理解,尊重原有道路退让逻辑,沿街角道路做弧性等距退让,保证路口四角关系一致性。
项目价值与启示
项目核心价值
项目以设计为媒介,让“永久为民”的工业精神在当代社区以“服务共享”形式延续。建筑不仅是空间容器,更是承载城市记忆、凝聚社区认同的“有温度的公共载体”。它使街道空间温暖,睦邻和谐安宁,街区能级提升,地段价格增值,实现了为老杨浦注入新活力、擦亮美好生活街灯的期许。
对老工业城区更新的启示
记忆活化“轻量级”路径:无需依赖工业遗存实体复刻,通过场景唤醒与细节植入,使历史记忆与当代生活自然融合,避免“博物馆式保护”带来的疏离感。
全龄共享“场景化”逻辑:以人群需求为线索,通过分层聚焦与跨层互动,构建连接不同年龄群体的空间纽带。
街道活力“微激活”范式:在有限空间内,通过形态织补与功能植入,将闲置街角转化为社区枢纽,为高密度城区更新提供“小空间大作为”的可复制经验。
结语
上海杨浦江浦人民坊项目在商业化运营设计团队的努力下,关注城市街道空间品质,通过对标国际一线同行设计实践,认识到公共和开放性的重要性。该项目为老工业城区既有场地更新提供了多方面启示,实现了工业遗存的有效利用和城市空间的优化升级。期待未来有更多类似项目,为城市发展注入新活力,让城市记忆得以延续,让城市生活更加美好。
如何不发帖就快速得到金币道行
 
快速回复
限120 字节
认真回复加分,灌水扣分~
 
上一个 下一个