切换到宽版
  • 13阅读
  • 2回复

[奇观]苏州双莲轩改造 / 蚁丘建筑、珞珞建筑[38P] [复制链接]

上一主题 下一主题
在线jjybzxw

UID: 551814

 

发帖
198502
金币
509322
道行
2004
原创
2433
奖券
3100
斑龄
39
道券
1134
获奖
0
座驾
设备
摄影级
在线时间: 44114(小时)
注册时间: 2008-10-01
最后登录: 2025-10-31
只看楼主 倒序阅读 使用道具 楼主  发表于: 昨天 09:29






© 游航
如何平衡传统风貌、对称秩序与当代建造技术及多样化功能需求,是双莲轩茶室改造设计的核心议题。该项目位于苏州常熟沙家浜风景区,四周环水,原建筑为钢筋混凝土结构,外观采用歇山小青瓦屋顶与红漆立柱等仿古元素,实则属于常见仿古风格建筑。随着建筑老化及消费模式变化,景区希望在维持传统风貌的基础上,融入茶饮、文创、展览等复合功能,提升建筑品质与空间体验。改造设计以“线索性表皮”为策略,旨在通过表皮处理串联风貌、功能、结构与场地等多重因素,既塑造鲜明的建筑形象,又回应复杂的空间诉求。

▲项目鸟瞰© 游航


▲项目概览© 游航
传统风貌与当代材料
改造保留了原有主体结构,并重点修复屋面仿古风貌,因此设计的焦点集中在横梁以下的立面区域。原建筑遮阳帘遮挡景观视野的问题,成为表皮设计的出发点。设计采用竖直与水平方向的多层次构造系统:竖向分为上部遮阳区、中部通透区及下部实墙区,并在遮阳区与通透区间设置金属挑檐遮阳;水平方向则分为玻璃中间层、木格栅室外层和内凹通透区,整体包裹建筑东、南、西三面。

▲结构轴测图© 蚁丘建筑 + 珞珞建筑


▲建筑周围环境© 游航
设计借鉴了江南园林中的漏窗与明瓦窗意象。漏窗借窗芯纹样实现借景与光影效果,明瓦窗则利用贝壳薄片与玻璃组合形成朦胧框景。双莲轩以当代工业化材料重新诠释这一传统:外侧采用成品木格栅拼接成波纹图案,呼应周边水景;内侧使用长虹玻璃,模拟贝壳片的半透明滤光效果。木格栅与长虹玻璃叠合,在室内形成动态光影,随视角变化呈现波光粼粼的视觉体验,既满足遮阳功能,又唤起与传统园林的意象关联。这种做法不仅回应了遮阳与景观的矛盾,也体现了当代建造逻辑:采用“层叠”而非传统“穿插”的构造方式,适应大尺寸工业化材料与分工建造的需求,实现传统意向的现代转译。

▲设计图解© 蚁丘建筑 + 珞珞建筑

▲立面采用成品木格栅拼接成波纹图案© 游航


▲木格栅与长虹玻璃叠合© 游航



▲内侧使用长虹玻璃,模拟贝壳片的半透明滤光效果© 游航
秩序性
双莲轩原有歇山顶与南侧拱桥共同强化了中轴对称秩序。改造设计通过表皮与空间处理,进一步凸显这一特征:

▲窗口与景观的视线关系© 蚁丘建筑 + 珞珞建筑


▲强化了中轴对称秩序,模拟贝壳片的半透明滤光效果© 游航
1. 南立面将原有两个入口合并居中,强化轴线;木格栅表皮自南面向东西两侧对称展开。
2. 立柱与墙体脱开,柱身涂深棕色,墙体留白,增强立柱视觉表现,明确五开间中轴秩序。
3. 室内延续外部对称性,吊顶、灯具及坡顶梁间设置的对称发光顶棚,共同营造古典氛围。
4. 平面布局上,从南侧拱桥至北侧开窗形成连续轴线。入口大门居中,两侧对称设置竖向玻璃窗与L形墙垛,强化入口中心感与场所感,使内外秩序连贯统一。



▲立柱与墙体脱开© 游航


▲共同营造古典氛围© 游航


▲强化入口中心感与场所感© 游航
灵活性
尽管南立面强调对称,东、西、北侧视角中建筑更多以斜向被感知,表皮设计转而灵活应对内部功能与景观差异:

▲取景框将视线交汇在室外景观© 游航
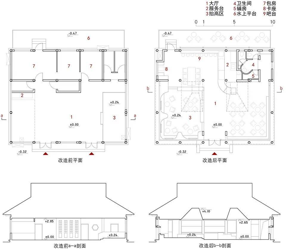
1. 东北角设置后勤区(卫生间、储藏间),其余区域开放,形成与对称屋顶对比的不规则平面。
2. 东侧座椅区与入口平齐,墙体设低矮书架,长窗将东南拱桥与栈道景观框为长卷。
3. 西侧区域抬高0.24米,墙体转化为波浪形固定座椅与条状书架,兼顾展览需求,并引导视线俯视近处水景,眺望北侧湖景。
4. 北立面设折叠窗与吧台,引入开阔水景;卫生间端部设方窗,既改善走道体验,又形成内外视线通廊,连接北侧景观亭。
5. 在斜向视角下,表皮通过转角长窗形成室内外叠合观景效果,弱化体量感,增强空间层次。Z字形平面与斜向动线打破了严格对称,丰富了空间体验。

▲北立面设折叠窗与吧台© 游航


▲东侧座椅区© 游航


▲引入开阔水景© 游航


▲天窗设计© 游航
表皮作为建筑设计的要素之一,具有表现力与中介特质。双莲轩改造中,表皮作为“线索”,不仅塑造视觉形象,更串联起风貌、功能、结构与场地等多重因素,在传统与现代、秩序与灵活之间取得平衡。其多层次构造兼顾整体感知与局部变化,容纳设计的具体性,逐步异化并丰富初始意图,最终实现“兼容并蓄的统一”。这一策略为类似仿古建筑改造提供了可借鉴的路径。
项目图纸
▲场地平面© 蚁丘建筑 + 珞珞建筑

▲改造前后平面及剖面© 蚁丘建筑 + 珞珞建筑

▲细部© 蚁丘建筑 + 珞珞建筑
项目名称:双莲轩建筑改造设计
项目类型:咖啡吧+茶室
设计方:蚁丘建筑、珞珞建筑
完成年份:2023.5
设计团队:吉宏亮,游航
项目地址:江苏苏州常熟沙家浜风景区
建筑面积:200㎡
摄影版权:游航
客户:苏州沙家浜旅游度假区管委会
结构形式:钢筋混凝土结构(主体)+原木结构(局部)
材料:金砖、青砖、长虹玻璃、实木板、小青瓦、镀锌钢、角钢
山庄提示: 道行不够,道券不够?---☆点此充值☆
 
在线jjybzxw

UID: 551814


发帖
198502
金币
509322
道行
2004
原创
2433
奖券
3100
斑龄
39
道券
1134
获奖
0
座驾
设备
摄影级
在线时间: 44114(小时)
注册时间: 2008-10-01
最后登录: 2025-10-31
只看该作者 沙发  发表于: 昨天 09:29
双莲轩茶室改造设计解析
引言
在建筑改造领域,如何平衡传统风貌、对称秩序与当代建造技术及多样化功能需求,是一个极具挑战性的核心议题。双莲轩茶室改造设计项目为我们提供了一个成功的范例,它位于苏州常熟沙家浜风景区,通过对原有建筑的巧妙改造,实现了传统与现代的完美融合。

项目背景与挑战
双莲轩茶室原建筑为钢筋混凝土结构,外观采用歇山小青瓦屋顶与红漆立柱等仿古元素,属于常见仿古风格建筑。然而,随着建筑老化以及消费模式的不断变化,景区希望在维持传统风貌的基础上,融入茶饮、文创、展览等复合功能,以此提升建筑品质与空间体验。这就给改造设计带来了诸多挑战,既要保留传统风貌的韵味,又要满足当代多样化的功能需求,同时还要运用先进的建造技术。

改造策略:线索性表皮
改造设计采用了“线索性表皮”的策略,这一策略旨在通过表皮处理串联风貌、功能、结构与场地等多重因素。表皮作为建筑设计的要素之一,具有表现力与中介特质,在双莲轩改造中,它就像一条线索,将各个方面的需求有机地结合在一起,既塑造了鲜明的建筑形象,又回应了复杂的空间诉求。

传统风貌与当代材料的融合
改造保留了原有主体结构,并重点修复了屋面仿古风貌,将设计焦点集中在横梁以下的立面区域。针对原建筑遮阳帘遮挡景观视野的问题,设计采用了竖直与水平方向的多层次构造系统。竖向分为上部遮阳区、中部通透区及下部实墙区,并在遮阳区与通透区间设置金属挑檐遮阳;水平方向则分为玻璃中间层、木格栅室外层和内凹通透区,整体包裹建筑东、南、西三面。

在设计意象上,借鉴了江南园林中的漏窗与明瓦窗。漏窗通过窗芯纹样实现借景与光影效果,明瓦窗利用贝壳薄片与玻璃组合形成朦胧框景。双莲轩以当代工业化材料重新诠释这一传统,外侧采用成品木格栅拼接成波纹图案,呼应周边水景;内侧使用长虹玻璃,模拟贝壳片的半透明滤光效果。木格栅与长虹玻璃叠合,在室内形成动态光影,随视角变化呈现波光粼粼的视觉体验,既满足了遮阳功能,又唤起了与传统园林的意象关联。这种做法体现了当代建造逻辑,采用“层叠”而非传统“穿插”的构造方式,适应了大尺寸工业化材料与分工建造的需求,实现了传统意向的现代转译。

秩序性的强化
双莲轩原有歇山顶与南侧拱桥共同强化了中轴对称秩序,改造设计通过表皮与空间处理进一步凸显了这一特征。
1. 南立面:将原有两个入口合并居中,强化了轴线;木格栅表皮自南面向东西两侧对称展开,使建筑在南立面上呈现出规整、对称的视觉效果。
2. 立柱与墙体处理:立柱与墙体脱开,柱身涂深棕色,墙体留白,增强了立柱的视觉表现,明确了五开间中轴秩序,让人们在视觉上能够清晰地感受到建筑的对称结构。
3. 室内空间:延续了外部对称性,吊顶、灯具及坡顶梁间设置的对称发光顶棚,共同营造出古典氛围,使室内空间与外部建筑的对称风格相呼应。
4. 平面布局:从南侧拱桥至北侧开窗形成连续轴线,入口大门居中,两侧对称设置竖向玻璃窗与L形墙垛,强化了入口中心感与场所感,使内外秩序连贯统一,人们在进入建筑的过程中能够感受到一种庄重、有序的氛围。

灵活性的体现
尽管南立面强调对称,但在东、西、北侧视角中建筑更多以斜向被感知,表皮设计因此灵活应对内部功能与景观差异。
1. 平面布局灵活性:东北角设置后勤区(卫生间、储藏间),其余区域开放,形成与对称屋顶对比的不规则平面,既满足了后勤功能的需求,又打破了严格对称可能带来的单调感。
2. 东侧区域:座椅区与入口平齐,墙体设低矮书架,长窗将东南拱桥与栈道景观框为长卷,为人们提供了一个欣赏景观的舒适空间,同时也增加了空间的文化氛围。
3. 西侧区域:区域抬高0.24米,墙体转化为波浪形固定座椅与条状书架,兼顾展览需求,并引导视线俯视近处水景,眺望北侧湖景,使人们在不同的高度和角度都能欣赏到美丽的景色,丰富了空间体验。
4. 北立面:设折叠窗与吧台,引入开阔水景;卫生间端部设方窗,既改善了走道体验,又形成了内外视线通廊,连接北侧景观亭,增强了空间的通透感和连贯性。
5. 斜向视角处理:在斜向视角下,表皮通过转角长窗形成室内外叠合观景效果,弱化了体量感,增强了空间层次。Z字形平面与斜向动线打破了严格对称,使人们在建筑中行走时能够感受到空间的变化和趣味性。

项目成果与意义
双莲轩改造中,表皮作为“线索”,不仅塑造了独特的视觉形象,更串联起了风貌、功能、结构与场地等多重因素,在传统与现代、秩序与灵活之间取得了平衡。其多层次构造兼顾了整体感知与局部变化,容纳了设计的具体性,逐步异化并丰富了初始意图,最终实现了“兼容并蓄的统一”。这一策略为类似仿古建筑改造提供了可借鉴的路径,展示了如何在保留传统韵味的同时,运用现代技术和设计理念满足当代功能需求,创造出具有独特魅力的建筑空间。

结语
双莲轩茶室改造设计项目是一次成功的建筑改造实践,它通过“线索性表皮”的策略,巧妙地平衡了传统与现代、秩序与灵活之间的关系。在未来的建筑改造中,我们可以借鉴这一策略,根据不同的项目需求和场地条件,灵活运用各种设计手法,创造出更多既具有历史文化价值又满足当代功能需求的优秀建筑作品。
如何不发帖就快速得到金币道行
 
在线姜谷粉丝

UID: 1569053

精华: 2
级别: 玉清道君

发帖
161195
金币
430161
道行
20030
原创
766
奖券
302
斑龄
0
道券
30
获奖
0
座驾
设备
摄影级
在线时间: 19421(小时)
注册时间: 2012-06-21
最后登录: 2025-10-31
只看该作者 板凳  发表于: 昨天 12:49
关于苏州双莲轩改造项目及关联设计团队“蚁丘建筑”和“珞珞建筑”,结合历史保护与城市更新背景,综合整理信息如下:

一、双莲轩改造背景与核心理念
微更新策略
苏州古城改造遵循“修旧如旧”原则,以“绣花功夫”推进微更新。例如32号街坊改造中,政府将选择权交予居民(迁居或留下),同步提升公共空间品质,如恢复樱花树、增设共享空间。双莲轩作为同类项目,可能延续这种居民参与与文化延续并重的模式。

功能活化与文脉融合
参考姑苏区其他案例(如彩香菜市场、吴廷琛故居):

文化嵌入:彩香菜市场改造中融入苏式园林剪影、时令美食展陈,并计划引入苏绣与核雕非遗体验;
空间转型:吴廷琛故居修缮后作为状元文化展厅,元宁公所改为校史馆,凸显历史功能再生。
双莲轩或类似项目可能通过文化展示或社区服务功能激活古建价值。
二、关联设计团队:蚁丘建筑与珞珞建筑
蚁丘建筑设计咨询(上海)有限公司

专业领域:聚焦建筑设计与文化空间营造,企业资质显示其具备历史建筑改造技术能力(注册资本、专利等未公开)。
实践参考:虽未直接提及双莲轩项目,但其参与苏州古城更新的可能性较高。类似团队在32号街坊改造中强调古建原真性保护,如曹沧洲祠的病害修复与结构加固。
珞珞建筑(信息补充)
搜索结果未明确提及该团队,但其名称可能关联自然生态理念。参考苏州近期项目趋势:

自然共生设计:如青岛八大关建筑保护中强调“建筑与草木低语”的互动,或启发苏州项目中庭院植被与古建的融合;
低碳技术:保利珺华赋项目采用铝板外墙、下沉式会所等节能设计,体现现代技术与传统的结合。
三、苏州古城改造共性技术手法
材料与工艺
使用传统“香山帮”技艺修复砖雕门楼、脊饰堆塑(如吴廷琛故居),搭配现代材料如花岗岩、铝板增强耐久性。
社区赋能
通过“代烧代炒”厨房、共享书房等便民服务提升古街活力,双莲轩改造可能延续此类生活化场景设计。
数字保护
江汉关大楼通过石英钟替换机械钟实现技术升级,苏州项目或引入数字化监测保护历史构件。
四、案例对比与启示
项目    设计团队    核心理念    亮点
32号街坊    未注明    居民共治+微更新    公共空间再造
彩香菜市场    未注明    文商融合+非遗活化    苏式美学市集
双莲轩    蚁丘/珞珞(推测)    待确认    需结合上述模式分析
总结
双莲轩改造预计延续苏州“古城细胞解剖工程”路径,蚁丘建筑可能提供专业修缮技术,珞珞建筑或贡献生态融合方案。具体成果需关注:
① 是否保留原建筑形制(如坡顶、院落);
② 如何平衡商业功能与文化展示;
③ 社区服务创新点(如共享厨房/书房)。
建议通过苏州规划局或姑苏区官网追踪项目公示

如何不发帖就快速得到金币道行
 
我有我可以
快速回复
限120 字节
认真回复加分,灌水扣分~
 
上一个 下一个