切换到宽版
  • 9阅读
  • 2回复

[奇观]上海笛者之寓 / TEDO知檐建筑设计事务所//Xpark坐标公园郑州悠犸空间店 / 未见筑设计事务所[56P] [复制链接]

上一主题 下一主题
在线jjybzxw

UID: 551814

 

发帖
244099
金币
879810
道行
2006
原创
2463
奖券
3580
斑龄
45
道券
1580
获奖
0
座驾
设备
摄影级
在线时间: 52069(小时)
注册时间: 2008-10-01
最后登录: 2026-04-25
只看楼主 倒序阅读 楼主  发表于: 4小时前
上海笛者之寓 / TEDO知檐建筑设计事务所[33P]

“疏活基底,褪去繁饰 ——回归本真与松弛。”



图片加载中…

项目位于上海市中心高层复式,室内面积约250平方米。业主是国内知名竹笛演奏家,深耕艺术领域,对空间有着清晰而纯粹的诉求:居所不仅是日常起居的家,更是可专注排练、创作、会客与独处的工作室,也是能够安放情绪、获得内心平静的精神场所,是一处兼具生活与创作的Home & Studio 复合空间。

▲ 改造前后空间格局对比

图片加载中…

图片加载中…▲ 空间改造后现场设计秉持轻介入的思路,不做过度拆改,以手术刀式的精准判断,找到空间核心症结,用最小的介入激活整个格局。原始基底为上下两层完全封闭的平层,楼板完整、层间割裂,空间呆板、缺少互动与呼吸感。我们没有推翻原有结构,而是精准定位核心区域,局部打开楼板、释放挑高,以此为中枢重新梳理空间关系。

图片加载中…▲ 挑高中庭看向客厅

图片加载中…▲ 挑高中庭看向玄关这一处关键改造,让原本封闭、独立的双层空间瞬间被激活,上下层形成视线贯通与气息流动。入户位置,一座极具雕塑感的弧形楼梯顺势嵌入挑空区域,成为空间开篇的视觉焦点,柔和的曲线体量平衡了建筑的硬朗,也让归家动线充满仪式感。

图片加载中…▲ 玄关入口

▲ 楼梯弧线与二层廊道的关系

图片加载中…▲ 弧形楼梯俯瞰二层廊道被赋予“桥”的意象,弱化封闭墙体,强化行走与眺望的体验。人在廊道间游走,虽身处室内,却拥有近似半室外的开阔与轻盈,视线可与挑高餐厅、茶室、音乐排练室相互对话、彼此渗透。空间不再是孤立的功能盒子,而是可游走、可互动、可停留的立体场域,既满足创作与独处所需的安静,又保留了家人间温和的联结。

图片加载中…▲ 二层廊道看向中庭

图片加载中…▲ “桥”的意象

图片加载中…▲ 二层廊道与餐厅的视线互动墙面与顶面统一采用粘土涂料,实现完整的一体化包裹,形成连续、温润、无边界的整体氛围。没有生硬的界面转折,没有强烈的装饰对比,空间在柔和的肌理中趋于完整与安定,为演奏、创作、冥想提供了高度纯粹的精神环境。

图片加载中…

图片加载中…

图片加载中…

图片加载中…

图片加载中…

图片加载中…空间中自然陈设的艺术画作与老家具,与业主的审美背景相契合,低调而有厚度,在安静中透出文化底蕴与时间质感。

图片加载中…

图片加载中…

图片加载中…▲音乐排练室

▲ 茶室

图片加载中…▲独立卧室每至午后,西向阳光缓缓漫入,在挑空空间、弧形楼梯与一体化的顶面墙面之间落下温暖而怀旧的光影。光线柔和、氛围静谧松弛,与竹笛演奏所需的专注、从容高度契合,也让日常品茶、阅读、休憩都沉浸在安定的精神氛围之中。

图片加载中…

图片加载中…

图片加载中…

图片加载中…

整个设计以精准、克制为核心,从空间结构到材质氛围,始终围绕居住者本身展开。用最小的改动解决最核心的问题,激活空间魅力;用最贴合的氛围回应业主的性格、职业与精神需求,最终在城市高处,打造出一处既可生活、亦可创作、既能独处、又能会客,兼具精神质感与松弛氛围的复合居所。设计图纸

图片加载中…▲ 一层平面图 ©TEDO知檐

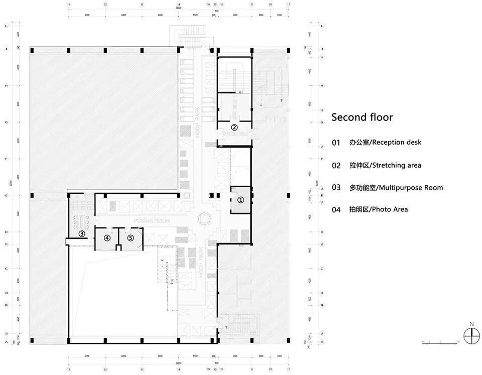
图片加载中…▲ 二层平面图 ©TEDO知檐项目信息:项目位置:上海市长宁区,中国项目类型:顶层复式公寓室内改造设计设计单位:TEDO知檐建筑设计事务所设计内容:室内设计、软装设计室内面积:251平方米项目周期:2025年7月 — 2026年2月项目摄影:Howie
========================================================================================================================================

Xpark坐标公园郑州悠犸空间店 / 未见筑设计事务所[23P]


© IN-FIELD studio去年,我们在贵阳认识了马晨稀。这个说话爽快、脑子里装满了想法的年轻人,带着他的X-Park找到我们。第一次合作,我们在健身房外立面做了“未完成”的脚手架,他说:“健身房不该是封闭的铁盒子。”我们都想知道,空间能不能不只是锻炼的地方,还能让人和人产生更多连接。所以当他在郑州拿到这个新场地,又来找我们的时候,我们没多问,直接答应了。这种信任,是合作最舒服的状态。Xpark新店藏在郑州一座老厂房改造的园区里,与NBA HOOP PARK,羽毛球馆一起组成了悠犸空间。马晨稀保有一如既往的理念:“不推销、不制造焦虑,让大家愿意来、待得住、练得开心。”他说得简单,但我们知道,要把这些落到空间里,得花些心思。

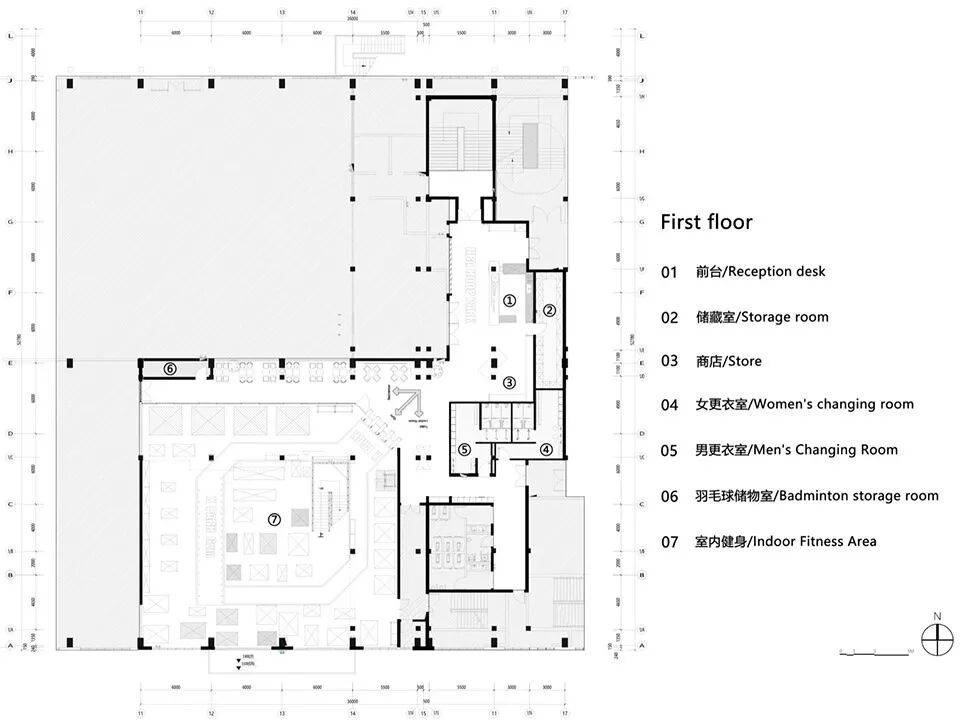
图片加载中…▲项目概览© IN-FIELD studio项目背景厂房首层架空为停车场。健身房共两层,一层包含接待区、训练区、更衣淋浴及配套服务;二层为专项训练区、拍照间、多功能室及办公室。原始空间拥有近11米的挑高区域,但同时也面临层高落差大、结构柱多、功能区复杂等挑战。这是与主理人的第二次合作。延续贵阳Xpark坐标公园的默契,我们不再仅仅思考“如何做一个好用的健身房”,而是追问“空间能否像催化剂一样,加速处在空间中的人身体与心理的蜕变?”

▲项目由厂房空间改造而成© IN-FIELD studio设计理念身体的反应实验室我们将整个空间定义为一座“身体的反应实验室”。“反应”意味着变化的发生,肌肉的撕裂与重建,耐力的积累与突破,体能的量变与质变。“实验室”暗示着一种过程性的的状态,每一次训练都是一次实验,每一次突破都是一次成功的结果。而这次的设计,不是创造一个“完成时”的完美空间,而是构建一个 “进行时”的过程性容器。它模拟并支撑着从混沌到清晰、从压抑到释放、从自我审视到自我肯定的路径。

图片加载中…▲草图© 未见筑场所营造接待区接待区以木饰面营造温暖的第一印象,搭配无机涂料与金属板台面,形成柔与刚、暖与冷的对冲。

图片加载中…▲接待区© IN-FIELD studio

图片加载中…

▲咖啡吧台© IN-FIELD studio入口区健身房入口空间以深色无机涂料压暗氛围,轴对称入口立面,在物理和心理上完成一次“进入”的仪式。

图片加载中…

图片加载中…▲入口区© IN-FIELD studio首层训练区训练区墙面以镀锌格栅作为立面装饰,保留工业质感的同时兼顾通透性,一定程度上削弱了座位区在通道上的紧促感。大面积EPDM运动地胶耐磨防滑,有效吸收冲击力,保障训练安全。镀锌格栅顶面与地面形成呼应,强化力量感与秩序感。

图片加载中…▲保留工业质感的同时兼顾通透性© IN-FIELD studio空间中心近11米挑高的区域,是整个“反应实验室”的核心。大面积的米色和灰色砖墙、暴露的裸顶面、交错的金属管线,都保持着原始、粗粝、未完成的样貌,只为让使用者在此专注最真实的自我。

图片加载中…▲空间中心近11米挑高的区域© IN-FIELD studio

图片加载中…▲重训区© IN-FIELD studio二层训练区二层空间延续一层的调性风格,大面积米色砖墙搭配原始顶面裸露结构。保持空间的质朴与真实。我们在墙面进行开洞,让阳光自然洒入,是整个空间不再是一个密闭的盒子,而是充满通透感的开放场域。有氧区与篮球场以通透玻璃围合,视线可以毫无阻碍地穿透——当你在跑步机上挥汗时,能看见楼下篮球场的对抗。这种空间互联,让不同项目的训练者彼此感知,共同构成一个流动的能量场。

图片加载中…▲二层空间© IN-FIELD studio


图片加载中…▲器械区© IN-FIELD studio拍照间延续Xpark贵阳店,我们在这家店同样设置了造型室,外表采用温暖的木饰面,与训练区的工业质感过渡,内部一整面墙的落地全身镜和一面高角度的俯视斜镜,方便健身者多角度观察和记录自己的训练成果。作为独立房间,为会员提供了足够的私密性,避免社交尴尬。

图片加载中…▲拍照间© IN-FIELD studio

图片加载中…▲拍照间内部© IN-FIELD studio更衣间&淋浴间更衣间和淋浴间材料主要使用白色格子砖搭配镀锌格栅,通过木质家具打破空间冰冷感觉,提升使用的舒适度。

图片加载中…▲更衣间&淋浴间 © IN-FIELD studio文章写到这儿,想回到开头那个人——马晨稀。从贵阳到郑州,他的想法没变过,不靠销售套路,不靠高压氛围,就靠一群真正热爱运动的人,慢慢把场子做起来。我们做的,不过是把他的话、他的想法,用一种看得见的方式呈现出来。

图片加载中…▲周边展示区© IN-FIELD studio信任这件事,说起来虚,但在我们这行,特别实在。第一次合作靠缘分,第二次合作靠的是彼此都觉得,跟对方一起干活挺顺的。方案讨论不用绕弯子,现场问题可以直接说,大家心里都清楚,最终是为了把这件事做好。希望郑州的朋友们,有空来这个“反应实验室”转转。练不练都行,进来坐坐,喝杯咖啡,看看别人挥汗如雨,也挺好。

▲细部© IN-FIELD studio项目图纸

▲一层平面图© 未见筑

图片加载中…▲二层平面图© 未见筑

图片加载中…

图片加载中…▲剖面图© 未见筑项目信息投资运营单位:黑蚊运动项目名称:Xpark坐标公园郑州悠犸空间店项目地址:河南省郑州市汝河街道淮河路35号院六冶厂房-03号设计面积:1600㎡设计时间:2025.04竣工时间:2026.02设计内容:室内设计主创设计师 : 李未韬、李博设计团队 :邓林、张智睿、张照鑫、刘婷室内施工图设计:重庆东境装饰设计有限公司VI设计:黑蚊运动摄影:IN-FIELD studio文本编辑:欧阳雨婷


山庄提示: 道行不够,道券不够?---☆点此充值☆
 
在线jjybzxw

UID: 551814


发帖
244099
金币
879810
道行
2006
原创
2463
奖券
3580
斑龄
45
道券
1580
获奖
0
座驾
设备
摄影级
在线时间: 52069(小时)
注册时间: 2008-10-01
最后登录: 2026-04-25
只看该作者 沙发  发表于: 4小时前
上海笛者之寓 × Xpark坐标公园郑州店:空间设计的双重叙事  
——从艺术栖居到身体觉醒的场所精神  
一、上海笛者之寓:城市高处的艺术复调  
项目定位:  
位于上海市中心250㎡顶层复式,业主为竹笛演奏家,需求超越传统住宅,需融合居住、创作、会客、独处的复合功能,同时成为安放情绪、回归本真的精神场域。  
设计策略:精准介入与精神共鸣  
1. 结构激活:以“最小改动”重构空间  
问题诊断:原始双层空间封闭割裂,楼板完整导致层间缺乏互动,氛围压抑。  
手术式改造:局部打开楼板形成挑高中庭,以弧形楼梯为核心串联上下层,视线与气息自由流动,激活空间活力。  
“桥”的意象:二层廊道弱化墙体,强化行走与眺望体验,与餐厅、茶室、排练室形成视线对话,空间从孤立功能盒变为立体游走场域。  

2. 材质叙事:温润的“无边界”氛围  
粘土涂料一体化包裹:墙面与顶面统一材质,消除界面转折,形成连续、柔和的肌理,为演奏、创作提供纯粹精神环境。  
光影诗学:午后西向阳光漫入,在挑空空间与弧形楼梯间投下温暖光影,与竹笛演奏的专注气质高度契合,营造松弛氛围。  

3. 文化锚点:艺术与老物的静默对话  
自然陈设的艺术画作与老家具:低调而有厚度,契合业主审美背景,在安静中透出文化底蕴与时间质感。  

设计哲学:  
TEDO知檐以“精准克制”为核心,通过结构轻介入、材质一体化与光影营造,将顶层复式转化为兼具生活温度与艺术高度的精神容器,回应业主对“本真与松弛”的深层诉求。  
二、Xpark坐标公园郑州店:身体觉醒的“反应实验室”  
项目定位:  
藏身于郑州老厂房改造园区的1600㎡健身房,延续贵阳Xpark“不推销、不焦虑”的理念,以“空间催化身体与心理蜕变”为核心,打造开放、互联、过程性的运动场域。  
设计策略:粗粝工业与身体诗学的碰撞  
1. 空间定义:从“功能容器”到“反应催化剂”  
挑战应对:厂房11米挑高、结构柱多、功能复杂,设计以“身体的反应实验室”为概念,模拟肌肉撕裂与重建、体能质变的过程。  
过程性设计:拒绝“完成时”的完美空间,保留裸顶面、金属管线、砖墙的原始质感,让使用者专注自我突破的真实体验。  

2. 场景营造:仪式感与通透感的平衡  
入口区:深色无机涂料压暗氛围,轴对称立面完成“进入”的仪式;  
训练区:镀锌格栅墙面与EPDM地胶强化力量感与秩序感,11米挑高区域成为核心能量场;  
二层互联:砖墙开洞引入阳光,有氧区与篮球场以玻璃围合,视线穿透形成流动的能量场,训练者彼此感知、共同成长。  

3. 功能细节:私密性与社交性的共生  
拍照间:木饰面外观与工业风过渡,内部全身镜与斜镜满足训练记录需求,独立房间避免社交尴尬;  
更衣间:白色格子砖搭配镀锌格栅,木质家具打破冰冷感,提升舒适度。  

设计哲学:  
未见筑设计事务所通过粗粝工业美学、过程性空间叙事与身体诗学的融合,将健身房转化为激发自我突破的社交实验场,回应主理人马晨稀“让运动回归纯粹”的初心。  
三、对比与启示:空间设计的双重范式  
| 维度         | 上海笛者之寓                     | Xpark郑州店                     |  
|------------------|--------------------------------------|--------------------------------------|  
| 核心诉求     | 艺术栖居与精神松弛                   | 身体觉醒与社交互联                   |  
| 空间策略     | 精准介入、结构激活、材质一体化       | 过程性设计、工业质感、视线互联       |  
| 氛围营造     | 温润、静谧、光影诗学               | 粗粝、能量、身体觉醒                 |  
| 文化锚点     | 艺术画作与老家具                     | 保留厂房历史痕迹                     |  
| 设计哲学     | “减法设计”回应本真需求               | “未完成感”催化蜕变                   |  
共同启示:  
1. 场所精神优先:  
笛者之寓通过空间重构与材质选择,强化艺术创作的专注氛围;  
Xpark以粗粝工业与互联场景,激发运动者的身体潜能与社交共鸣。  

2. 用户需求深度解读:  
笛者之寓围绕演奏家的职业特性,打造“可演奏的家”;  
Xpark将主理人“不焦虑运动”的理念转化为空间语言,拒绝销售套路,回归运动本质。  

3. 材料与光影的叙事力:  
粘土涂料的温润与镀锌格栅的冷硬,分别服务于艺术栖居与身体觉醒;  
笛者之寓的午后光影与Xpark的挑高能量场,均通过自然元素强化空间主题。  
结语:空间作为“生活提案”  
上海笛者之寓与Xpark郑州店,展现了空间设计的两种可能性:  
前者是城市高处的艺术复调,用精准克制的设计语言,为艺术家打造精神栖居的乌托邦;  
后者是老厂房中的身体觉醒场,以粗粝工业与互联场景,重构运动社交的实验场。  

设计本质:  
无论是回应艺术创作的本真需求,还是催化身体与心理的蜕变,空间设计的终极目标始终是——通过场所精神,提升人的生命质量。  

🎋🏋️♂️✨
如何不发帖就快速得到金币道行
 
在线姜谷粉丝

UID: 1569053

精华: 2
级别: 玉清道君

发帖
180604
金币
617189
道行
20030
原创
769
奖券
471
斑龄
0
道券
30
获奖
0
座驾
设备
摄影级
在线时间: 22767(小时)
注册时间: 2012-06-21
最后登录: 2026-04-25
只看该作者 板凳  发表于: 2小时前
一、上海相关空间与设计机构
1. TEDO知檐建筑设计事务所
地址:中国(上海)自由贸易试验区临港新片区新杨公路1588号4幢
简介:成立于2022年,主打现代建筑与景观设计,尤其擅长将传统建筑语言(如中式支摘窗)融入现代设计,曾打造具有“听雨观檐”意境的自建房作品
。其设计风格强调新旧融合,在乡村别墅改造和商业空间更新中均有实践。
2. 上海笛者之寓
暂未查询到该名称的精准注册信息或公开项目报道,可能为小众设计项目、临时展览空间或未广泛披露的工作室。建议补充更多背景信息(如项目类型、地址线索)以便进一步核实。

二、郑州相关空间与设计机构
1. Xpark坐标公园郑州悠犸空间店
地址:河南省郑州市汝河街道淮河路35号院六冶厂房-03号
设计机构:未见筑设计事务所
空间特色:由老厂房改造而成的复合型健身空间,与NBA HOOP PARK、羽毛球馆共同组成“悠犸空间”。设计保留11米挑高工业结构,以“身体的反应实验室”为核心理念,通过原始砖墙、裸露管线与现代运动设施的碰撞,营造兼具力量感与通透感的训练环境 。空间包含双层训练区、独立造型室、多功能社交区,主打“无推销、轻量化”的健身社群氛围。
2. 未见筑设计事务所
核心业务:聚焦商业空间、城市更新与乡村建筑改造,代表作包括贵阳Xpark坐标公园、郑州悠犸空间等。设计风格强调“生长性”与“场所精神”,擅长用未完成的工业元素(如脚手架、裸露结构)激发空间与人的互动
如何不发帖就快速得到金币道行
 
我有我可以
快速回复
限120 字节
认真回复加分,灌水扣分~
 
上一个 下一个