切换到宽版
  • 18阅读
  • 2回复

[奇观]无锡市洛社第二中心小学 / c+d设计中心[55P] [复制链接]

上一主题 下一主题
在线jjybzxw

UID: 551814

 

发帖
234856
金币
801175
道行
2006
原创
2457
奖券
3500
斑龄
44
道券
1548
获奖
0
座驾
设备
摄影级
在线时间: 50039(小时)
注册时间: 2008-10-01
最后登录: 2026-03-17
只看楼主 倒序阅读 楼主  发表于: 10小时前
— 本帖被 xgch 执行加亮操作(2026-03-17) —

01.
从封闭校园到教育社区
无锡市洛社第二中心小学位于惠山区洛社镇洛神路与洛竹路交界处东北侧,四周目前均是空地,上位规划显示未来均为住宅区。地块用地面积 59495 平方米,建设需容下2430名学生的54班小学。

西侧鸟瞰©DC国际

西北角鸟瞰©DC国际
面对场地周边自然景观与特色场所资源的匮乏,设计摒弃了依赖外部环境的传统思路,转向通过内部空间结构的系统性重构,构建一个自给自足、功能复合的“教育社区”。其核心是以“围合街区”、“十字街道”与“环线公园”三重立体街园的复合组织模式,取代传统的“鱼骨式”布局,通过功能的高度集约与空间的立体化组织,在有限场地内实现空间活力的最大化,最终将校园从单一的教学场所,转型为一个复合型教育生活园地。

教育社区模式分析©c+d设计中心

东侧鸟瞰©DC国际

顶视图©DC国际

▲概念草图

▲概念草图
02.
教育社区的空间生成
教育社区的空间生成,旨在通过多尺度、网络化的结构,将学习、生活、社交融为一体。其核心逻辑可解构为三个相互嵌套与联动的空间层次:

▲教育社区横剖关系
一、围合街区:差异化社区单元
“围合街区”是教育社区的基础功能单元与社群载体。通过将不同年级(如1-3年级、4-6年级)及功能(行政生活、艺体教学)设置差异化的围合组团,形成了尺度宜人、归属感强的“微型社区”。每个组团配备完善的基础功能,实现了一定程度的自给自足。这种布局有助于培育具有认同感的文化社群。在具体操作层面,主要通过以下两种策略实现:

功能分析©c+d设计中心

教学组团分析©c+d设计中心
1.差异化社区营造
设计打造了四个功能组团,分别对应不同使用需求:
低年级组团(1-3年级):采用明快色彩与富有童趣的空间形态,通过错落体量、雕塑感坡道与游戏化设施,营造激发探索欲的成长环境,契合低龄学生心理特征。

低年级组团空间氛围©DC国际

低年级组团空间氛围©DC国际

低年级组团空间氛围©DC国际

低年级组团空间氛围©DC国际

低年级组团空间氛围©DC国际
高年级组团(4-6年级):以简洁形体与干净立面营造专注氛围,通过一层平台将大院落分解为多个小庭院,并设置多层次屋顶活动空间,满足社交与休闲需求。

高年级组团空间氛围©DC国际

高年级组团空间氛围©DC国际

高年级组团空间氛围©DC国际
行政生活组团:整合行政办公、餐饮与教工公寓,通过高墙分隔形成两个特色庭院—生态种植农场与静谧休憩园,并结合底层花园、屋顶农场与雨水系统构建生态微循环。

行政生活组团空间氛围©DC国际

行政生活组团空间氛围©DC国际

行政生活组团空间氛围©DC国际
艺体楼组团:注重使用效率与社会共享,艺术类教室临活力环布置便于联系教学区,体育馆南向城市道路设置,地下游泳馆、地面体育馆与二层排球馆均设独立出入口,支持分时段向社区开放,体现“校社融合”理念。

艺体楼组团空间氛围©DC国际

艺体楼组团空间氛围©DC国际
2.模块化建造体系
为平衡成本与效率,采用垂直正交体系,以8700 X 9600的标准教学单元柱网作为基础,同时结合一些特殊需求的教学空间适当改变柱网尺寸,打造整体统一又有一定丰富度的模块化组团。立面设计中以横向线条为主,局部通过嵌入模块化体量打破单调,实现弹性与高效的统一。

模数化分析©c+d设计中心

模块化立面©DC国际

模块化立面©DC国际

模块化立面©DC国际
二、十字街道:公共交互网络轴
“十字街道”作为校园整体空间结构的核心骨架与活力中枢,通过南北与东西两条开放轴线的立体交织,构建了一个多层次、全天候的公共交互网络。东西向轴线作为校园的形象主轴,自西侧主入口起,依次串联起入口广场、拱形阶梯、校园剧场等高公共性节点,形成具有序列感与仪式性的空间节奏,强化了校园门户形象与文化展示功能;南北向轴线则作为生活与学习交流轴,通过大台阶、架空连廊、共享平台等过渡性空间,有机衔接教学组团、生活服务区与运动场地,引导并承载师生日常通勤、课间交往与自发活动。两条轴线在校园几何中心交汇,围合形成尺度适宜、界面丰富的核心庭院,这一空间不仅成为视觉焦点,更通过柔性的边界、多向的接入与复合的功能设置,持续激发非正式学习、跨年级交往与公共生活事件。

十字街道©DC国际

十字街道©DC国际

十字街道©DC国际

公共主轴剖透视关系图©c+d设计中心

入口门廊©DC国际

拱形台阶©DC国际

核心庭院©DC国际

草阶剧场©DC国际

拾阶广场©DC国际
三、环线公园:立体连接系统与效率环
“环线公园”作为在平面网络基础上建立的立体化连接系统,其核心价值在于提升通行效率与拓展活动维度。一层设置的风雨连廊确保了各教学组团与核心区在恶劣天气下的无障碍连通,体现了全天候人性化设计理念。二层平台则创新性地将交通空间转化为线性课间活动场域,突破了传统走廊的单一功能限制,为学生提供了即时、便捷的社交与轻度活动空间,实现了交通与活动功能的有机复合。

环形公园之活动平台©DC国际

环形公园之活动平台©DC国际

环形公园之活动平台©DC国际

多彩立面©DC国际

多彩立面©DC国际

多彩立面©DC国际
“围合街区-十字街道-环线公园”共同构成了一种层次清晰、功能互补的空间生成系统:围合街区培育归属社群与稳定单元,十字街道塑造公共核心与集体认同,而环线公园则提供效率连接与活动拓展。
03.
无景之景,壶天自春
针对场地周边资源匮乏的现实,本案探索了一种不依赖外景的校园内生范式:通过“围合街区-十字街道-环线公园”三重系统的立体编织,在有限用地中构建出功能复合、活力交织的教育生活共同体。最终呈现的“壶天自春”之境证明,即使缺乏外部景观依托,校园仍能通过内部空间的重构与社区化营造,实现持续的内生性活力与育人效能。

夕阳下的校园©DC国际

夕阳下的校园©DC国际

夕阳下的校园©DC国际

夕阳下的校园©DC国际
项目图纸

总平面图©c+d设计中心

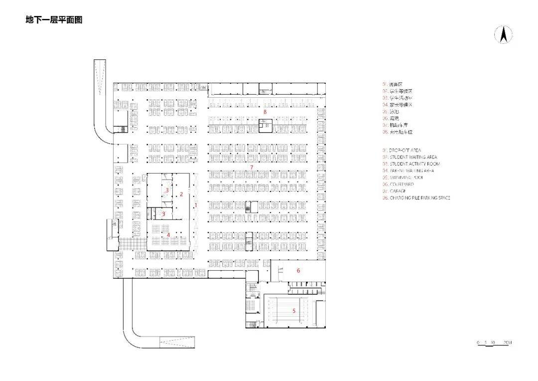
地下一层平面图©c+d设计中心

一层平面图©c+d设计中心

二层平面图©c+d设计中心

三层平面图©c+d设计中心

四层平面图©c+d设计中心

五层平面图©c+d设计中心

B楼剖面图©c+d设计中心

剧场、天文台剖面图©c+d设计中心
项目信息
项目名称:无锡市洛社第二中心小学
项目地址:无锡市惠山区洛社镇洛神路与洛竹路东北侧
项目业主:无锡市惠山区洛社镇人民政府
用地面积:59495㎡
建筑面积:68467㎡
设计时间:2021.02-2022.02
建设时间:2022.12-2025.08
建筑设计:c+d设计中心
主持建筑师:董屹
主创设计师:高盘
建筑设计团队:杨凯悦、肖蓉、祁晓晗、刘灿星、李宗键、张雪桐、林威、路晨凯、吴晶晶、梁汭锟、李实
合作机构:江苏博森建筑设计有限公司(施工图/景观/室内)
项目摄影:DC国际
1条评分金币+1
xgch 金币 +1 本次暂不予评分,请看友情提醒信息。谢谢! 2小时前
山庄提示: 道行不够,道券不够?---☆点此充值☆
 
在线jjybzxw

UID: 551814


发帖
234856
金币
801175
道行
2006
原创
2457
奖券
3500
斑龄
44
道券
1548
获奖
0
座驾
设备
摄影级
在线时间: 50039(小时)
注册时间: 2008-10-01
最后登录: 2026-03-17
只看该作者 沙发  发表于: 10小时前
Re:无锡市洛社第二中心小学 / c+d设计中心[53P]
无锡市洛社第二中心小学:从封闭校园到教育社区的蜕变
一、项目概况
无锡市洛社第二中心小学坐落于惠山区洛社镇洛神路与洛竹路交界处东北侧,周边目前多为空地,未来规划皆为住宅区。学校地块用地面积达59495平方米,需容纳2430名学生的54班小学。鉴于场地周边自然景观与特色场所资源匮乏,设计打破传统依赖外部环境的思路,通过内部空间结构系统性重构,打造自给自足、功能复合的“教育社区”。
二、教育社区模式构建
(一)整体布局创新
摒弃传统“鱼骨式”布局,采用“围合街区”“十字街道”与“环线公园”三重立体街园的复合组织模式。通过功能高度集约与空间立体化组织,在有限场地内实现空间活力最大化,将校园从单一教学场所转型为复合型教育生活园地。
(二)空间生成逻辑
教育社区空间生成通过多尺度、网络化结构,融合学习、生活与社交,核心逻辑分为三个相互嵌套联动的空间层次。
1. 围合街区:差异化社区单元
作为教育社区基础功能单元与社群载体,通过不同年级与功能设置差异化围合组团,形成尺度宜人、归属感强的“微型社区”。
差异化社区营造:打造四个功能组团。低年级组团(1 - 3年级)以明快色彩与童趣空间形态,通过错落体量、雕塑感坡道与游戏化设施,激发低龄学生探索欲;高年级组团(4 - 6年级)以简洁形体与干净立面营造专注氛围,通过一层平台分解大院落为多个小庭院,并设置多层次屋顶活动空间满足社交休闲需求;行政生活组团整合行政办公、餐饮与教工公寓,以高墙分隔形成生态种植农场与静谧休憩园两个特色庭院,结合底层花园、屋顶农场与雨水系统构建生态微循环;艺体楼组团注重使用效率与社会共享,艺术类教室临活力环布置,体育馆南向城市道路设置,地下游泳馆、地面体育馆与二层排球馆设独立出入口,支持分时段向社区开放,体现“校社融合”理念。
模块化建造体系:采用垂直正交体系,以8700 X 9600的标准教学单元柱网为基础,结合特殊需求教学空间适当改变柱网尺寸,打造统一且丰富的模块化组团。立面设计以横向线条为主,局部嵌入模块化体量打破单调,实现弹性与高效统一。
2. 十字街道:公共交互网络轴
作为校园整体空间结构核心骨架与活力中枢,通过南北与东西两条开放轴线立体交织,构建多层次、全天候公共交互网络。
东西向轴线:作为校园形象主轴,自西侧主入口起,依次串联入口广场、拱形阶梯、校园剧场等高公共性节点,形成具有序列感与仪式性的空间节奏,强化校园门户形象与文化展示功能。
南北向轴线:作为生活与学习交流轴,通过大台阶、架空连廊、共享平台等过渡性空间,有机衔接教学组团、生活服务区与运动场地,引导并承载师生日常通勤、课间交往与自发活动。
核心庭院:两条轴线在校园几何中心交汇,围合形成尺度适宜、界面丰富的核心庭院,成为视觉焦点,通过柔性边界、多向接入与复合功能设置,持续激发非正式学习、跨年级交往与公共生活事件。
3. 环线公园:立体连接系统与效率环
作为平面网络基础上的立体化连接系统,核心价值在于提升通行效率与拓展活动维度。
风雨连廊:一层设置的风雨连廊确保各教学组团与核心区在恶劣天气下无障碍连通,体现全天候人性化设计理念。
二层平台:创新性地将交通空间转化为线性课间活动场域,突破传统走廊单一功能限制,为学生提供即时、便捷的社交与轻度活动空间,实现交通与活动功能有机复合。
三、设计理念与成效
(一)无景之景,壶天自春
针对场地周边资源匮乏现实,探索不依赖外景的校园内生范式。通过“围合街区 - 十字街道 - 环线公园”三重系统立体编织,在有限用地中构建功能复合、活力交织的教育生活共同体。最终呈现的“壶天自春”之境表明,即使缺乏外部景观依托,校园仍能通过内部空间重构与社区化营造,实现持续内生性活力与育人效能。
(二)项目信息汇总
项目名称:无锡市洛社第二中心小学
项目地址:无锡市惠山区洛社镇洛神路与洛竹路东北侧
项目业主:无锡市惠山区洛社镇人民政府
用地面积:59495㎡
建筑面积:68467㎡
设计时间:2021.02 - 2022.02
建设时间:2022.12 - 2025.08
建筑设计:c + d设计中心
主持建筑师:董屹
主创设计师:高盘
建筑设计团队:杨凯悦、肖蓉、祁晓晗、刘灿星、李宗键、张雪桐、林威、路晨凯、吴晶晶、梁汭锟、李实
合作机构:江苏博森建筑设计有限公司(施工图/景观/室内)
项目摄影:DC国际

无锡市洛社第二中心小学的设计,为校园建设提供了创新范例,在有限场地与资源条件下,通过独特设计理念与空间布局,打造出充满活力与育人价值的教育社区。
1条评分金币+6
xgch 金币 +6 回复认真,加分鼓励 2小时前
如何不发帖就快速得到金币道行
 
在线姜谷粉丝

UID: 1569053

精华: 2
级别: 玉清道君

发帖
176107
金币
573998
道行
20030
原创
769
奖券
432
斑龄
0
道券
30
获奖
0
座驾
设备
摄影级
在线时间: 21997(小时)
注册时间: 2012-06-21
最后登录: 2026-03-17
只看该作者 板凳  发表于: 9小时前

📌 背景
“无锡洛社二小”这一名称在当前公开资料中未见独立记录,而“无锡市洛社中心小学”是该地区一所历史悠久且信息较为完整的重点小学,常被简称为“洛社小学”。因此,用户所指的“二小”很可能为表述误差,实际应为“洛社中心小学”。

🎯 无锡市洛社中心小学 校园文化理念概览
类别    内容
办学理念    立足向上生活、关怀师生生命、实现同生共长
校风    和谐中争先,朴实中创新
教风    构筑“教学做合一”、“动心、力行、合作”的教风
学风    实施“亲历与体验并重”的生活德育
特色项目    现代生活教育研究;国学经典诵读(如《诗经》获特等奖)
教育目标    构筑情感与智慧共生的生命课堂
(补充说明)该校注重陶行知教育思想实践,为“江苏省学陶研陶先进集体”,强调“做中学”与生活化教学

✅ 结论
“无锡洛社二小”的确切信息,但基于地理位置和命名习惯,最匹配的是无锡市洛社中心小学,其校园文化以“现代生活教育”为核心,倡导师生共同成长,重视传统文化与实践结合 。若你确实在寻找另一所学校,请确认是否为“秦巷小学”“张镇家园”周边新校或其他民办机构。
[ 此帖被姜谷粉丝在2026-03-17 10:54重新编辑 ]
1条评分金币+6
xgch 金币 +6 回复认真,加分鼓励 2小时前
如何不发帖就快速得到金币道行
 
我有我可以
快速回复
限120 字节
认真回复加分,灌水扣分~
 
上一个 下一个