切换到宽版
  • 56阅读
  • 1回复

[奇观]厦门大学附属科技中学五缘校区 / 厦门合立道工程设计集团一院一致建筑设计所ONENESS STUDIO[49P] [复制链接]

上一主题 下一主题
在线jjybzxw

UID: 551814

 

发帖
215165
金币
636139
道行
2006
原创
2442
奖券
3260
斑龄
41
道券
1197
获奖
0
座驾
设备
摄影级
在线时间: 46919(小时)
注册时间: 2008-10-01
最后登录: 2025-12-31
— 本帖被 huozm32831 执行加亮操作(2025-12-24) —


© 吴志盛
在厦门五缘湾的城市肌理间,湿地公园的芦苇荡与 TOD 综合体的玻璃幕墙隔街相顾,坂美民俗文化园里闽南老宅的红砖,正与现代建筑的金属线条悄然对话——厦门科技中学五缘校区,便生长在这片自然与城市共生、传统与现代交织的土地上。场地既紧邻自然,又衔接城市高端商业住宅与湿地公园 TOD;东望厦金湾,西眺五缘湾,周边高端物业林立,既有现代都市的繁华,亦有地域历史的厚重,承载着丰富的场地信息。

▲区位图© 一致建筑工作室

▲东南角沿街状态© 吴志盛

▲校园主入口© 吴志盛

▲主入口处三叉桥© 吴志盛
本案未将自身打造成孤立的 “教育岛”,而是以 “城市露台・教学综合体” 为核心骨架,将五缘湾的波光、民俗园的记忆、学生的学习、生活与嬉闹,尽数编织进建筑空间,成为五缘湾畔一道可学、可游、可望、可忆的独特风景。

▲主入口处通往礼堂运动馆的连桥© 吴志盛

▲从教学楼看西面的五缘湾方向© 吴志盛
城市露台:衔接于自然、城市与建筑之间
厦门人素来偏爱听风看海,这所学校的设计便循着这份地域情愫,依托场地东北高、西南低的自然坡度,顺着不同尺度空间的需求,叠造出层层退台。每一层露台都能“接住”专属风景,承载多样活动:往西看,教学综合楼的退台逐级延伸至礼堂、运动馆,学生凭栏远眺,五缘湾湿地公园的景致与落日余晖尽收眼底;往东望,宿舍楼的平台与阳台朝向厦金湾,落日晚霞会将红砖铺就的连桥、平台与走廊,染成温暖的橙色调。


▲科创楼的退台© 吴志盛

▲教学综合楼逐层内退的关系© 吴志盛

▲叠造出的层层退台© 吴志盛
架空的运动场如一块悬浮的巨型露台,腾跃于校园之上——向外,它承接湿地公园的一线绿意,可远眺环岛干道的街景;向内,能俯瞰跑道上奔跑的同学身影。自然、城市与校园,一边是自然,一边是城市,一边是校园,几个不同要素之间的距离被拉进。

▲科创楼回望连桥及运动馆© 吴志盛

▲架空体育场© 吴志盛

▲架空体育场近景© 吴志盛

▲教学楼架空体育场与跑道的关系© 吴志盛

▲跑道处望向北侧恒禾七尚方向© 吴志盛


▲跑道处望向南侧湿地公园TOD方向© 吴志盛
教学楼的大弧线,来源于进入校门之后并把建筑的形体往民俗文化园方向衔接引导的大思路,逐级内推的大露台朝西敞开,四季流转间,每一时刻的落日风光都能被完整收纳。这些露台空间,终为在校师生筑起了高品质的自由活动场域。

▲主入口望向教学综合楼© 吴志盛

▲三叉桥处望向教学综合楼© 吴志盛
地脉留痕:让场地记忆长在建筑里
科技中学五缘校区的设计,没有让场地的“故事”消散:原场地的老建筑虽已迁址至紧邻的坂美民俗文化园,但设计通过空间的退让与视线的贯通,将民俗园的景致“请”入校园。

▲艺术楼、连桥、科创楼与坂美民俗文化园© 吴志盛
科创楼双向退台与民俗园、湿地公园形成视线呼应——既在城市空间形态上衔接了东侧民俗园与西侧湿地公园,更成为师生课间思考、冥想的静谧角落。场地内的两棵古榕树均得以完整保留:教学楼前的古榕树,是校园主入口的重要对景,教学楼的大弧线亦在此收束;另一棵矗立在科创楼与跑道之间,枝叶如伞盖般垂落至跑道,成为校园西北角的关键空间节点。

▲跑道与古树、连桥的关系© 吴志盛

▲保留古榕树处望向教学综合楼© 吴志盛
民俗园的红砖基因也被揉进材料选择:户外空间铺地大量采用红砖,指尖触之粗糙却温润,足尖踏之满是闽南老厝的温厚质感。行走其间,现代校园与记忆里的闽南街巷悄然建立情感联结,地域归属感便这样悄悄落在脚下。

▲三楼平台望向艺术楼与架空足球场© 吴志盛
功能织构:教学、活动空间的大融合
本案的教学空间布局集约且简明:音乐、美术、舞蹈教室集中设于艺术楼,所有普通教室、图书馆及各学科实验室,则均集中在教学综合楼内。教学综合楼中央的核心中庭,空间层次丰富、递进有序,且自然光线充沛,堪称教学楼的 “空间心脏”——以它为中心,聚合起所有教室、图书馆与实验室。未来这里的使用场景将多元而鲜活:可陈列学生的科创作品展,可举办小型读书会,甚至能让社团搭建临时舞台、开展各类展览活动,成为激发学生自由活动的 “场景引擎”。

▲主入口望向艺术楼© 吴志盛

▲教学楼的 “空间心脏”© 吴志盛
更值得一提的是,教学楼、艺术楼、宿舍、大礼堂与运动场,通过一系列环形交通动线串联;大大小小的露台空间则参与到动线建构中,最终将教学、艺术与生活空间,织就成一张紧密联动的交通网络。

▲教学综合楼东侧立面© 吴志盛

▲教学综合楼首层架空空间© 吴志盛

▲教学综合楼庭院望向西侧© 吴志盛

▲艺术楼© 吴志盛

▲大礼堂室内空间© 吴志盛
光影呼吸:让风与光成为校园的常客
厦门的夏季湿热难耐,设计希望在未来的校园里,风与光线能成为提升空间品质的核心力量。建筑之间与内部嵌套着多个不同体系、不同尺度的庭院,首层多采用架空设计——风可循着庭院渗入室内,再从庭院上部流转而出,让校园四季都拥有舒适的内部风环境。


▲教学综合楼中庭空间© 吴志盛
图书馆空间围绕中庭展开,入口处设双层挑空设计,顶部与庭院的开窗让阳光肆意洒入,为阅读营造出温暖而松弛的氛围。灯具藏于网状吊顶之后,入夜后,灯光透过张拉网洒满空间,勾勒出灵动而细腻的光影氛围。

▲教学综合楼图书馆内庭院空间© 吴志盛
结构呈现:富有力量感的结构形式
体育馆的胶囊状立柱将各类管线包裹其中,既传递出富有秩序的力量感,又与体育馆的空间尺度完美契合;艺术楼与科创楼的连桥,采用梯形混凝土立柱结构,在光影交错间营造出极具体积感的空间氛围 —— 而柱与柱之间的座椅,亦成为结构的有机组成部分。

▲连桥回望教学及生活区© 吴志盛

▲连桥望向科创楼© 吴志盛


▲科创楼回望连桥及运动馆© 吴志盛
遗憾
教学综合楼的中庭空间,为营造良好的空间氛围与层次,设计团队在结构设计上付出了诸多努力与尝试。结构刚拆除脚手架时,也确实呈现出了较好的空间效果;可惜在后续建造过程中,这一空间效果未能得到妥善延续,成为本项目最大的遗憾。

▲原始结构© 郑思洋

▲教学综合楼中庭空间近景© 吴志盛
后记
这所学校最动人之处,并非华丽的造型,而是其贴合场地的策略与姿态——将城市风景、地域记忆与教育空间的需求妥善融合,既轻松又亲切。在这里,设计希望建筑不再是冰冷的载体,而是能陪伴学生成长的朋友、能与城市对话的纽带、能留存场地记忆与一代代学子高中岁月的容器。这大概就是校园该有的样子:让每一个踏入这里的人,都能由衷感受到——在这里,我既想专注学习,也想好好生活。
项目图纸

▲总平面图© 一致建筑工作室


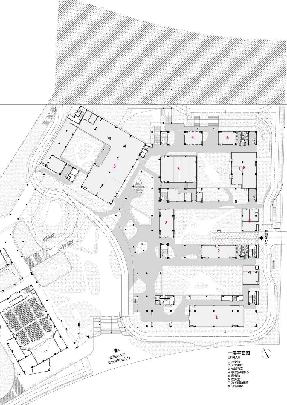
▲一层平面图© 一致建筑工作室


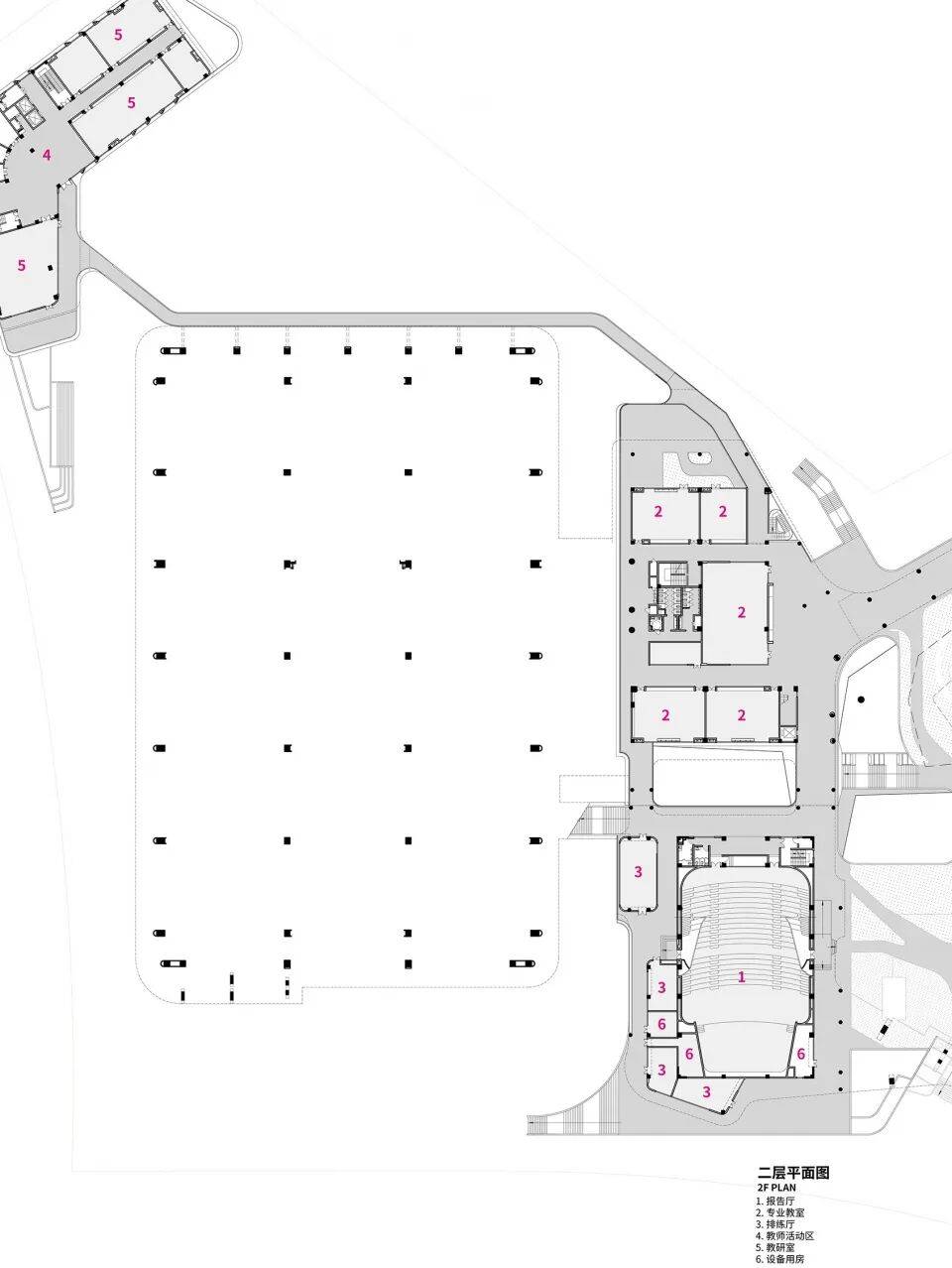
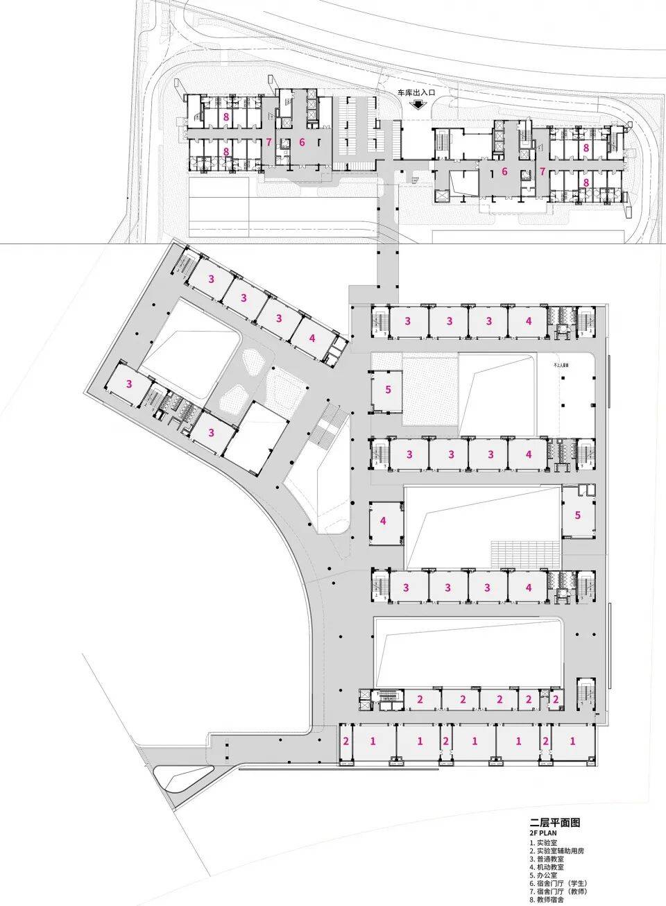
▲二层平面图© 一致建筑工作室


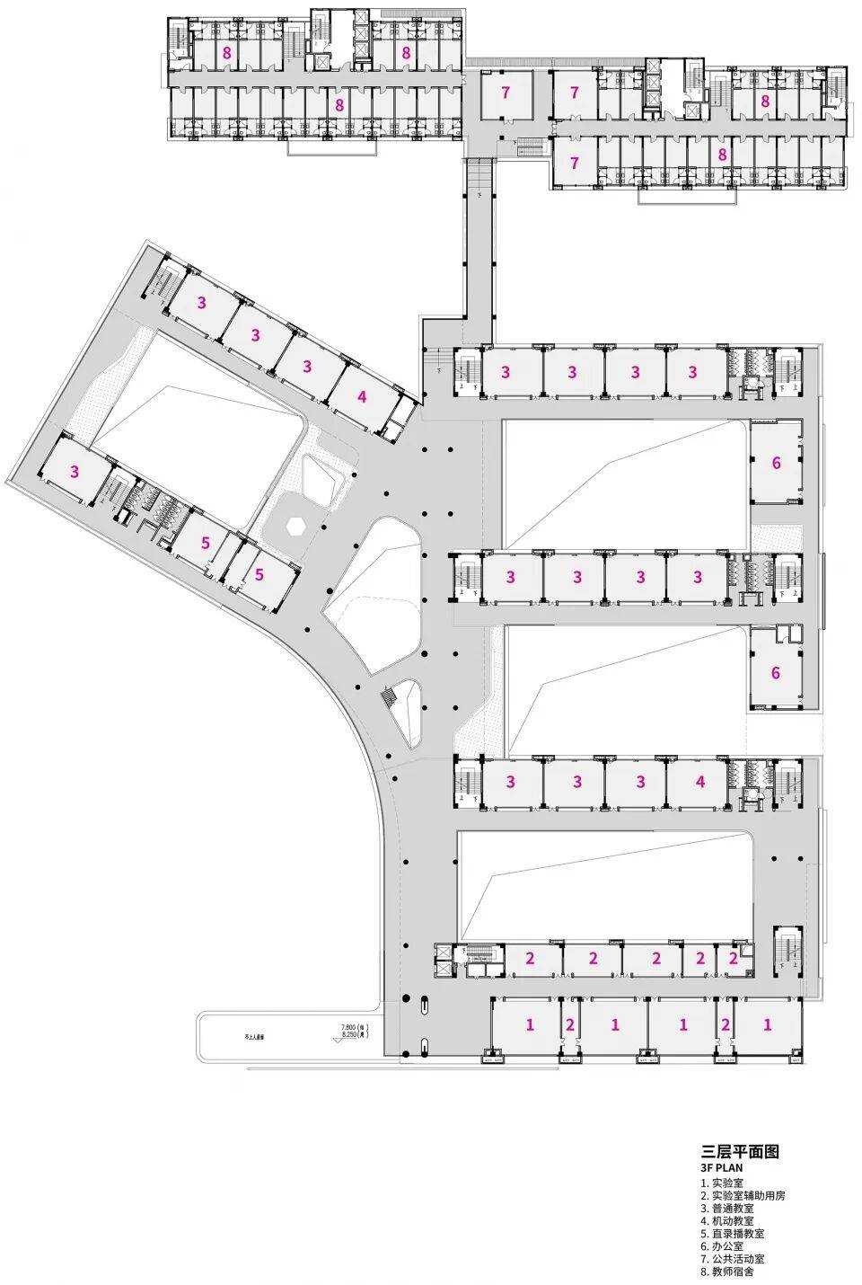
▲三层平面图© 一致建筑工作室

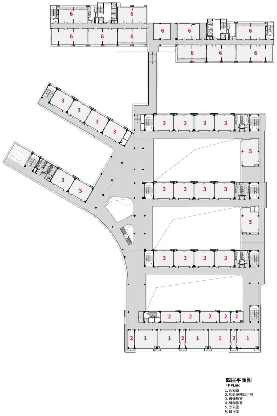
▲四层平面图© 一致建筑工作室

▲五层平面图© 一致建筑工作室
项目名称:厦门市厦门大学附属科技中学五缘校区
项目类型:学校
设计方:厦门合立道工程设计集团一院一致建筑设计所ONENESS STUDIO
公司网站:
项目经理:魏伟
工程负责人:魏伟 李智
主创建筑师:郑思洋
完成年份:2025.05
建筑方案设计:郑思洋、余晨铭、方逸真、贾达鑫、王林祺、许志钦、蓝晓峰、林仕超、贺韬、陈茜颖、黄昕怡、黄镇洲、陈书翔
建筑施工图设计:张金清、吴利杰、杨毓琛、黄耀鹏、林颖、江衍璋、苏泽宇、蔡燕玲、静毅民、肖翊、李智、王龙、张龙、张乐君
代建单位:许东磊、刘松涛、汤宇轴、蔡宗演、林晓龙、邱艺鹏、黄妙琪、魏林设、刘欣、吴飞洪、冯豪杰、罗新明
结构:洪哲、罗凡、聂华、王子鹏、陈泉波、郑炜鋆、陈旭东、蔡振威、缪涛涛、黄剑锋、解秋素、林文敏、汪炳坤
电力:林承过、汪启丁、陈德刚、王莉、何祎诺
给排水:李益勤、陈超南、黄喆、林健梅、邱昀灿
暖通:潘智捷、陈建胜、林宏志
景观:蔡曦、王健、陈晓璇、翁泽宇、周凤香、王毓鑫、刘颖
室内:厦门方式设计
施工:中建四局建设发展有限公司
项目地址:福建省厦门市
摄影版权:吴志盛
客户:厦门国贸教育集团有限公司
代建单位:厦门国贸建设开发有限公司
施工:中建四局建设发展有限公司
1条评分金币+22
huozm32831 金币 +22 - 12-24
山庄提示: 道行不够,道券不够?---☆点此充值☆
 
在线jjybzxw

UID: 551814


发帖
215165
金币
636139
道行
2006
原创
2442
奖券
3260
斑龄
41
道券
1197
获奖
0
座驾
设备
摄影级
在线时间: 46919(小时)
注册时间: 2008-10-01
最后登录: 2025-12-31
只看该作者 沙发  发表于: 12-24
厦门市厦门大学附属科技中学五缘校区:自然、城市与教育空间的完美融合
一、项目概况
厦门市厦门大学附属科技中学五缘校区坐落于厦门五缘湾这片自然与城市共生、传统与现代交织的土地上。它紧邻自然,又衔接城市高端商业住宅与湿地公园TOD,东望厦金湾,西眺五缘湾,周边高端物业林立,承载着丰富的场地信息。项目于2025年5月完成,设计方为厦门合立道工程设计集团一院一致建筑设计所ONENESS STUDIO,旨在打造一个非孤立“教育岛”,而是与周边环境紧密相连,可学、可游、可望、可忆的独特校园。
二、设计亮点
(一)城市露台:衔接自然、城市与建筑
1. 层层退台设计:学校依托场地东北高、西南低的自然坡度,顺着不同尺度空间需求叠造出层层退台。教学综合楼退台逐级延伸至礼堂、运动馆,学生凭栏可远眺五缘湾湿地公园景致与落日余晖;宿舍楼平台与阳台朝向厦金湾,落日晚霞会将红砖铺就的连桥、平台与走廊染成橙色调。
2. 架空运动场:架空的运动场如悬浮巨型露台,向外承接湿地公园绿意,可远眺环岛干道街景;向内能俯瞰跑道上奔跑的同学身影,拉近了自然、城市与校园的距离。
3. 大弧线设计:教学楼的大弧线源于进入校门后衔接民俗文化园的大思路,逐级内推的大露台朝西敞开,能完整收纳四季流转间的落日风光,为师生筑起高品质自由活动场域。
(二)地脉留痕:让场地记忆长在建筑里
1. 引入民俗园景致:原场地老建筑迁至坂美民俗文化园后,设计通过空间退让与视线贯通,将民俗园景致“请”入校园。科创楼双向退台与民俗园、湿地公园形成视线呼应,成为师生课间思考、冥想的静谧角落。
2. 保留古榕树:场地内两棵古榕树完整保留。教学楼前的古榕树是校园主入口重要对景,教学楼大弧线在此收束;另一棵矗立在科创楼与跑道之间,枝叶垂落至跑道,成为校园西北角关键空间节点。
3. 采用红砖材料:民俗园的红砖基因融入材料选择,户外空间铺地大量采用红砖,让行走其间的人感受到闽南老厝的温厚质感,建立现代校园与闽南街巷的情感联结。
(三)功能织构:教学、活动空间大融合
1. 教学空间布局集约:音乐、美术、舞蹈教室集中设于艺术楼,普通教室、图书馆及各学科实验室集中在教学综合楼内。教学综合楼中央的核心中庭空间层次丰富、自然光线充沛,是教学楼的“空间心脏”,未来可举办多种活动,成为激发学生自由活动的“场景引擎”。
2. 环形交通动线串联:教学楼、艺术楼、宿舍、大礼堂与运动场通过一系列环形交通动线串联,露台空间参与动线建构,将教学、艺术与生活空间织就成紧密联动的交通网络。
(四)光影呼吸:让风与光成为校园常客
1. 多个庭院与架空设计:建筑之间与内部嵌套多个不同体系、尺度的庭院,首层多采用架空设计,风可循庭院渗入室内再流转而出,让校园四季拥有舒适的内部风环境。
2. 图书馆光影设计:图书馆空间围绕中庭展开,入口处双层挑空设计,顶部与庭院开窗让阳光洒入,营造温暖松弛的阅读氛围。灯具藏于网状吊顶后,入夜后灯光透过张拉网洒满空间,勾勒出灵动细腻的光影氛围。
(五)结构呈现:富有力量感的结构形式
1. 体育馆胶囊状立柱:体育馆的胶囊状立柱将各类管线包裹其中,传递出富有秩序的力量感,且与空间尺度完美契合。
2. 连桥梯形混凝土立柱:艺术楼与科创楼的连桥采用梯形混凝土立柱结构,在光影交错间营造出极具体积感的空间氛围,柱与柱之间的座椅成为结构的有机组成部分。
三、遗憾之处
教学综合楼的中庭空间,设计团队在结构设计上付出诸多努力与尝试,结构刚拆除脚手架时呈现较好空间效果,但在后续建造过程中,这一空间效果未能得到妥善延续,成为本项目最大的遗憾。
四、项目总结
厦门市厦门大学附属科技中学五缘校区最动人之处在于其贴合场地的策略与姿态,将城市风景、地域记忆与教育空间需求妥善融合。它让建筑不再是冰冷载体,而是陪伴学生成长的朋友、与城市对话的纽带、留存场地记忆与学子高中岁月的容器。在这里,人们既能专注学习,又能好好生活,为校园设计提供了优秀的范例。
1条评分金币+6
huozm32831 金币 +6 - 12-24
如何不发帖就快速得到金币道行
 
快速回复
限120 字节
认真回复加分,灌水扣分~
 
上一个 下一个