切换到宽版
  • 4阅读
  • 1回复

[奇观]首尔再添文化地标!dmp 战胜 Zaha Hadid 等公司赢得韩国第二世宗文化中心国际竞赛[61P] [复制链接]

上一主题 下一主题
在线jjybzxw

UID: 551814

 

发帖
206293
金币
569264
道行
2004
原创
2435
奖券
3180
斑龄
40
道券
1167
获奖
0
座驾
设备
摄影级
在线时间: 45497(小时)
注册时间: 2008-10-01
最后登录: 2025-11-28
只看楼主 倒序阅读 使用道具 楼主  发表于: 37分钟前




由韩国建筑公司designcamp moonpark dmp 与首尔大学景观建筑系教授 King Young-min 合作设计的第二世宗文化中心项目,在历时两年、分为两个阶段的国际设计竞赛程序之后最终胜出。项目选址于首尔汝矣岛公园北侧,作为“大汉江工程”的核心组成部分,规划涵盖多功能文化设施、滨水文化公园、城市绿地广场与生态公园。其目标是在汉江沿岸打造一座具有世界级影响力的文化地标,同时延续并升级光化门世宗文化中心的空间品质与城市文化服务功能。






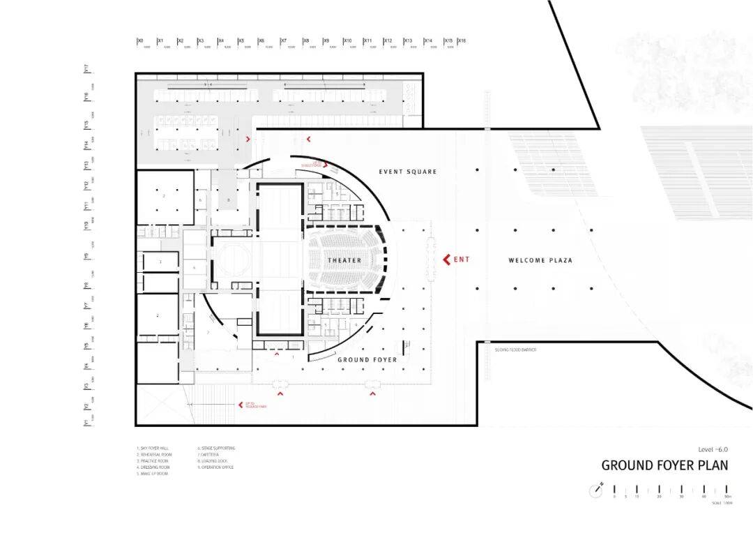
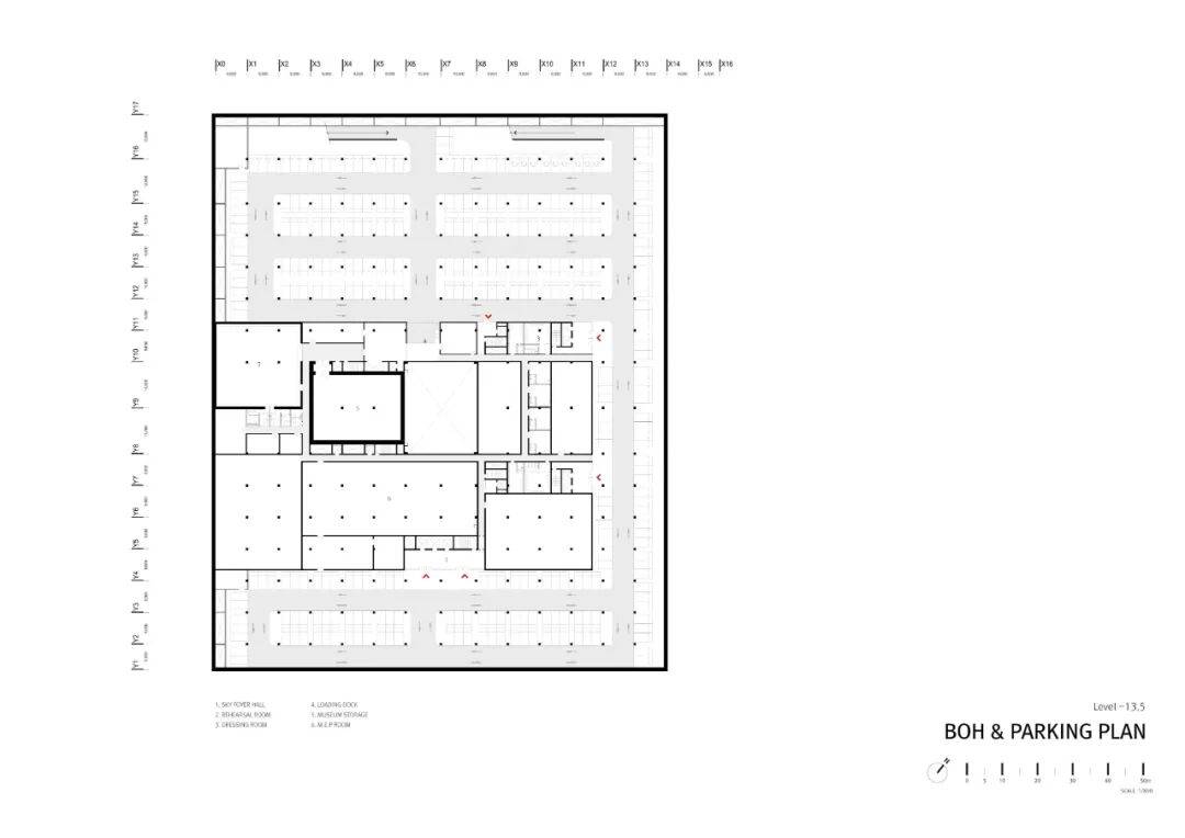
第二世宗文化中心总建筑面积约66,000 平方米,包含一个大型表演厅(1,800 个座位)、一个中型表演厅(800 个座位)、一个展览厅(5,670 平方米)以及一个公共观景台。项目不仅作为文化表演场馆,更注重与汝矣岛公园和汉江滨水区的有机融合,成为集文化、休闲与公共活动于一体的城市公共艺术中心。





设计竞赛评审的重点在于建筑的象征意义、与自然环境的联系及其公共属性。获胜的dmp 团队方案以表演厅为核心,设计流畅的屋顶线条与多层结构,并融入屋顶花园和露台,使建筑在回应场地环境的同时塑造出新的城市地标。汝矣岛广场的设计进一步强化了表演厅与城市日常空间的衔接,兼具开放性与公共性。
在其他入围方案中,MAA-Melike Altinisik Architects + BAUM Architects + Aliveus Landscape 提出的方案尤为引人注目。这一设计以椭圆形建筑群展现,利用地势的自然变化将绿地与金融区天际线相连接,展现出城市与自然的和谐融合。Heerim Architects & Planners 的方案则以“屋顶下的开放公共空间”为主题,巧妙结合韩国传统建筑的屋檐元素,打造一个与自然融合的开放文化空间。瑞士建筑事务所 Durig AG 与Shinpyong Organization For Architecture(SPOA)、Studio Vulkan Landschaftsarchitektur 的方案通过透明的外立面和中央广场的多功能设计,模糊了建筑、景观与社区的界限。Zaha Hadid Architects + ULD Studio + SAMOO Architects & Engineers 提出的方案则通过优美的弧形屋顶和文化峡谷般的空间,连接了汉江与汝矣岛公园,打造一个向所有人开放的公共文化场所。




竞赛结果公布后,首尔市政府于11 月 10 日在世宗文化中心举办颁奖典礼,宣布项目正式启动。包括获奖作品在内的五个方案将展出至 11 月 16 日。首尔市政府城市空间本部部长赵南俊表示,第二世宗文化中心将成为首尔新的文化地标,也是市民日常生活中可自由享受的公共空间。未来,市政府将公开展示从设计到施工的全过程,并积极听取公众意见。


根据规划,首尔市政府将与中标团队签订设计合同,开展为期约14 个月的基础与详细设计工作。项目预计于 2026 年 12 月开工建设,2029 年 12 月正式竣工。





















图片:©designcamp moonpark dmp + King Young-min、서울시 제공
其他入围团队:
01.
Heerim Architects & Planners





图片:©Heerim Architects & Planners
02.
Durig AG+Shinpyong Organization For Architecture(SPOA)+ Studio Vulkan Landschaftsarchitektur





图片:©Durig AG + Shinpyong Organization For Architecture(SPOA) + Studio Vulkan Landschaftsarchitektur
03.
Zaha Hadid Architects + ULD Studio + SAMOO Architects & Engineers





图片:©Zaha Hadid Architects + ULD Studio + SAMOO Architects & Engineers
04.
MAA-Melike Altinisik Architects + BAUM Architects + Aliveus Landscape





图片:©MAA-Melike Altinisik Architects + BAUM Architects + Aliveus Landscape
山庄提示: 道行不够,道券不够?---☆点此充值☆
 
在线jjybzxw

UID: 551814


发帖
206293
金币
569264
道行
2004
原创
2435
奖券
3180
斑龄
40
道券
1167
获奖
0
座驾
设备
摄影级
在线时间: 45497(小时)
注册时间: 2008-10-01
最后登录: 2025-11-28
只看该作者 沙发  发表于: 36分钟前
  上文提供的内容详细介绍了首尔第二世宗文化中心项目从竞赛胜出方案到入围设计、后续推进规划等全方位信息。结合这些内容,可进一步梳理出该项目的核心价值与亮点,具体如下:

  1.  项目定位贴合城市核心规划

  该项目作为“大汉江工程”的核心部分,完美契合首尔对汉江流域“恢复自然、人水和谐”的治理理念。其选址首尔汝矣岛公园北侧,不只是单纯建设文化场馆,而是规划了滨水文化公园、生态公园等多种空间,将文化功能与汉江生态休闲场景深度绑定,既延续光化门世宗文化中心的城市文化服务职能,还致力于成为汉江沿岸的世界级文化地标,助力首尔打造兼具生态与人文气息的滨水城市风貌。

  2.  中标设计兼顾地标性与公共性

  由designcamp moonpark dmp和King Young-min合作的方案,以表演厅为核心的设计极具巧思。流畅的屋顶线条搭配多层结构,再加上屋顶花园与露台的融入,让建筑既能融入汝矣岛公园和汉江滨水区的自然环境,又能凭借独特造型成为城市新地标。而汝矣岛广场的设计更是打通了表演场馆与城市日常空间的壁垒,让这座大型文化建筑不再有疏离感,充分满足市民日常休闲、公共活动等需求,凸显公共属性。

  3.  入围方案展现多元设计思路

  其余四个入围方案风格迥异,从不同维度诠释了建筑与自然、城市的关系。有的侧重通过椭圆形建筑与地势结合,衔接绿地和金融区天际线;有的深挖本土文化,用传统屋檐元素营造开放空间;有的凭借透明外立面模糊建筑、景观与社区的边界;还有的以弧形屋顶和特色空间串联汉江与公园,这些方案虽未中标,却也展现了国际建筑界对文化地标设计的多元探索。

  4.  项目推进注重公众参与

  首尔市政府在竞赛结果公布后举办专门颁奖典礼,还展出五个优秀方案供公众了解。后续不仅会公开展示从设计到施工的全过程,还会积极收集市民意见。这种公开透明的推进方式,既体现了对公众权益的重视,也能让最终建成的建筑更贴合市民需求,让第二世宗文化中心真正成为受市民喜爱的公共空间。

  5.  规划时间线清晰且合理

  项目有着明确的推进节奏,先开展14个月的基础与详细设计工作,再于2026年12月开工,预计2029年12月竣工。充足的设计周期能保障建筑细节的打磨,合理的施工周期则有助于兼顾工程质量与建设效率,为项目顺利落地为高品质文化地标提供保障。

如何不发帖就快速得到金币道行
 
快速回复
限120 字节
认真回复加分,灌水扣分~
 
上一个 下一个