切换到宽版
  • 12阅读
  • 2回复

[奇观]Hadi Teherani 赢得不伦瑞克“纽约客”总部扩建设计竞赛[36P] [复制链接]

上一主题 下一主题
在线jjybzxw

UID: 551814

 

发帖
198503
金币
509324
道行
2004
原创
2433
奖券
3100
斑龄
39
道券
1134
获奖
0
座驾
设备
摄影级
在线时间: 44114(小时)
注册时间: 2008-10-01
最后登录: 2025-10-31
只看楼主 倒序阅读 使用道具 楼主  发表于: 8小时前

转自:archrace 建筑竞赛

德国快时尚零售连锁品牌“纽约客(New Yorker)”正在投资其位于德国不伦瑞克汉萨大街的总部大楼,计划在未来几年进行全面扩建和翻新。这项面向未来的投资,表明这家年轻的时尚零售商正致力于回归本源。德国建筑事务所 Hadi Teherani Architects 通过竞赛从15个参赛团队中脱颖而出,赢得了第一名。
Hadi Teherani 在竞赛后说道:“我们希望通过提高建筑在生态和施工方面的效率来提升其品质。它不仅要具有现代感和美感,还要对纽约客品牌的标志性元素进行诠释。”
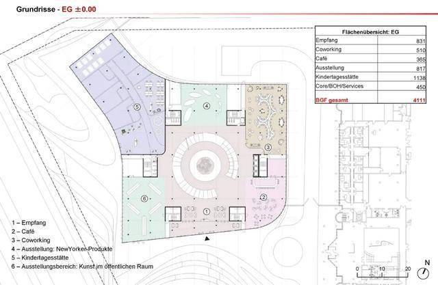
NEW YORKER 全新时尚园区的落成,清晰地展现了其对时尚、创新和团队精神的追求;现代化的工作和创意空间将兼具功能性和设计感。除了必备的办公室、会议室和开放空间外,NEW YORKER 专卖店、公司餐厅和一所新的公司幼儿园也将整合在内。
Hadi Teherani Architects 合伙人兼建筑主管 Sebastian Appl 说道:“我们很高兴赢得这次竞标。我们的设计构思是一座步入式雕塑——一个不仅创造功能空间,更确立品牌形象的建筑组合。凭借清晰的品牌架构和强大的设计语言,建筑本身成为了 NEW YORKER 品牌的表达。它将汉萨大街上的这片土地改造成一个真正的 NEW YORKER 园区——一个充满创造力和凝聚力的场所。现有建筑与新建筑的结合创造了一种全新的空间品质,既强化了企业文化,又使办公室的工作更具吸引力。”
NEW YORKER 总经理 Jonas Gnauck 则说:“这将是一个聚会场所,来自不同部门的同事们将在这里再次紧密联系在一起。正是这种亲密感和团队合作成就了我们 NEW YORKER。” 目前,NEW YORKER 公司总部约有1300名员工分布在不伦瑞克的不同办公楼内。未来,他们将齐聚新园区,员工人数将进一步增至1500人。
Gnauck 还说:“新总部的落成,表明我们致力于将不伦瑞克市作为我们的家园,同时也致力于全球增长。”因此,NEW YORKER 携手 Knapp 家族,为去年去世的公司创始人 Friedrich Knapp 打造了一座极具前瞻性和创新性的纪念馆。
不伦瑞克市长 Dr. Thorsten Kornblum 在赛后说:“我非常高兴 NEW YORKER 对布伦瑞克的坚定承诺。我们支持这家全球知名企业的发展,并为在不伦瑞克保留现有工作岗位并创造新岗位感到高兴。”他还感谢 Knapp 家族和董事总经理 Jonas Gnauck 在不伦瑞克市做出的杰出社会贡献和赞助活动, “这延续了去年去世的公司创始人 Friedrich Knapp 的杰出承诺,并保留了他的光荣记忆。”
竞赛获奖方案
第一名
Hadi Teherani Architects















以上图片如无特殊标注,版权均为 ©Hadi Teherani Architects
第二名
LOVE architecture and urbanism






以上图片如无特殊标注,版权均为 ©LOVE architecture and urbanism
第三名
Zaha Hadid Architects











以上图片如无特殊标注,版权均为 ©Zaha Hadid Architects
文字编辑 | 思空建观
校对审核 | 斯坦
本竞赛信息及文中涉及的图片均来自网络,原始版权属于竞赛主办方和竞赛提案设计师所有,如有版权问题,请联系删除。
欢迎转发,禁止未经archrace允许以此编辑版本转载。
山庄提示: 道行不够,道券不够?---☆点此充值☆
 
在线jjybzxw

UID: 551814


发帖
198503
金币
509324
道行
2004
原创
2433
奖券
3100
斑龄
39
道券
1134
获奖
0
座驾
设备
摄影级
在线时间: 44114(小时)
注册时间: 2008-10-01
最后登录: 2025-10-31
只看该作者 沙发  发表于: 8小时前
德国“纽约客”总部扩建竞赛结果揭晓:Hadi Teherani Architects荣获桂冠

竞赛背景与项目概况
德国快时尚零售连锁品牌“纽约客(New Yorker)”计划对其位于德国不伦瑞克汉萨大街的总部大楼进行全面扩建和翻新。这一面向未来的投资不仅是品牌对自身发展的信心体现,也标志着其致力于“回归本源”的战略决心。项目旨在打造一个集办公、创意、零售及生活于一体的综合性“时尚园区”,以强化企业文化、提升员工凝聚力,并彰显品牌在时尚、创新与团队精神上的追求。

竞赛结果:Hadi Teherani Architects拔得头筹
本次设计方案竞赛吸引了15个顶尖建筑团队参与角逐。经过激烈竞争,德国建筑事务所Hadi Teherani Architects凭借其创新且贴合品牌理念的设计方案脱颖而出,荣获竞赛第一名。

Hadi Teherani Architects的设计理念
Hadi Teherani在竞赛后阐述了其设计核心:“我们希望通过提高建筑在生态和施工方面的效率来提升其品质。它不仅要具有现代感和美感,还要对纽约客品牌的标志性元素进行诠释。”事务所合伙人兼建筑主管Sebastian Appl进一步解释道:“我们的设计构思是一座步入式雕塑——一个不仅创造功能空间,更确立品牌形象的建筑组合。凭借清晰的品牌架构和强大的设计语言,建筑本身成为了NEW YORKER品牌的表达。”

新园区的功能与愿景
NEW YORKER全新时尚园区将整合多种功能空间,包括:
- 现代化办公与创意空间:兼具功能性与设计感,为员工提供高效协作环境。
- NEW YORKER专卖店:展示品牌最新产品与时尚理念。
- 公司餐厅:为员工提供便捷餐饮服务。
- 新的公司幼儿园:完善员工福利,体现人文关怀。

未来,NEW YORKER将把目前分散在不伦瑞克不同办公楼的约1300名员工齐聚新园区,员工人数预计将增至1500人。总经理Jonas Gnauck强调:“这将是一个聚会场所,来自不同部门的同事们将在这里再次紧密联系在一起。正是这种亲密感和团队合作成就了我们NEW YORKER。”

此外,园区还将为纪念去年去世的公司创始人Friedrich Knapp打造一座极具前瞻性和创新性的纪念馆,以延续其精神遗产。

地方政府的支持与评价
不伦瑞克市长Dr. Thorsten Kornblum对NEW YORKER的决定表示高度赞赏:“我非常高兴NEW YORKER对不伦瑞克的坚定承诺。我们支持这家全球知名企业发展,并为在不伦瑞克保留现有工作岗位并创造新岗位感到高兴。”他特别感谢Knapp家族和总经理Jonas Gnauck在不伦瑞克市做出的杰出社会贡献和赞助活动,“这延续了去年去世的公司创始人Friedrich Knapp的杰出承诺,并保留了他的光荣记忆。”

其他竞赛获奖方案简介

第二名:LOVE architecture and urbanism
LOVE architecture and urbanism的方案同样展现了对现代办公空间与城市融合的深刻思考。其设计注重空间的灵活性与可持续性,通过简洁的线条和通透的立面,营造出开放、明亮的工作氛围。方案强调了建筑与周边城市环境的对话,试图将总部园区打造成不伦瑞克的一个新地标。

第三名:Zaha Hadid Architects
扎哈·哈迪德建筑事务所(Zaha Hadid Architects)以其标志性的流线型设计风格参与竞赛。其方案延续了事务所一贯的创新精神,通过动态的建筑形态和先进的工程技术,探索了未来办公空间的可能性。设计中融入了对光影、材料和空间流动性的极致追求,试图创造一个充满活力和动感的时尚园区。

结语
此次“纽约客”总部扩建竞赛的成功举办,不仅为品牌未来发展奠定了坚实基础,也为不伦瑞克市的城市更新注入了新的活力。Hadi Teherani Architects的获奖方案以其对品牌文化的深刻理解和创新的设计手法,成功诠释了NEW YORKER“时尚、创新、团队精神”的核心价值观。随着项目的逐步推进,这座全新的时尚园区有望成为德国乃至欧洲零售行业总部建筑的新典范。
如何不发帖就快速得到金币道行
 
在线姜谷粉丝

UID: 1569053

精华: 2
级别: 玉清道君

发帖
161195
金币
430161
道行
20030
原创
766
奖券
302
斑龄
0
道券
30
获奖
0
座驾
设备
摄影级
在线时间: 19421(小时)
注册时间: 2012-06-21
最后登录: 2025-10-31
只看该作者 板凳  发表于: 5小时前
Hadi Teherani Architects 的设计理念以跨尺度整合、技术创新与人文关怀为核心,融合建筑、室内与产品设计,形成独具先锋性的设计哲学。通过对搜索结果的分析,其核心理念可归纳为以下维度:

一、整体性设计思维:建筑即“微缩城市”
跨尺度统一性
Hadi Teherani 主张“像设计微缩建筑物一样设计产品”,将建筑逻辑延伸至家具、室内等细节。例如:

为凯乐玛设计的 flow 系列家具,以建筑结构思维实现功能与美学的融合;
法兰克福 Flare 综合楼 将酒店、公寓、商铺整合为有机整体,立面扇形退台既引导人流,又塑造城市地标。
功能与情感的平衡
设计强调 “挑战性外观”与“细致功能性”并重。如:

奥地利 Atmosphere 水疗中心:玻璃与混凝土结构嵌入山体,无边泳池延伸至天然湖景,将功能空间转化为自然体验;
杜伊斯堡 墨卡托一号办公楼:扇形立面优化城市视野,模块化平面适配多元办公场景,屋顶露台增强使用者舒适度。
二、技术革新与可持续实践
材料先锋性

墨卡托一号采用 90% 再生铝外墙(Wicona HydroCIRCAL),原料来自汽车、食品包装等回收材料,成为德国生态建筑标杆;
法兰克福机场火车站以 全玻璃拱顶 实现自然采光与节能,重构交通建筑透明性。
气候适应性设计

中东项目(如扎耶德水上宫殿大桥)融合 遮阳系统与自然通风,呼应沙漠环境;
墨卡托一号的 立体绿化屋顶 缓解城市热岛效应,结合太阳能控制玻璃调节微气候

三、地域文脉与动态空间叙事
语境化地标创造

法兰克福 Flare 综合楼 以“非标准立面”回应历史街区,通过旋转体量衔接火车站与旧城,形成“视觉锚点”;
科隆 Kranhaus 建筑群(港口地标)以几何切割重构滨水天际线。
流动空间体验
设计擅长用 曲线与透明性 打破边界:

奥地利水疗中心通过 悬挑泳池与湖景联动,模糊建筑与自然界限;
迪拜 Marasi 商住塔楼 以“面纱流动线”隐喻阿拉伯文化,中庭光井贯穿十层空间。
四、人文关怀与社会连接
公共性强化:墨卡托一号底层设置 美食广场与开放广场(朴茨茅斯广场),激活车站至市中心的步行网络;
情感化照明:建筑立面光带随城市事件变色(如足球赛亮蓝白、圣诞市场转红),实现“建筑与市民对话”;
工业美学表达:鲁尔区项目裸露混凝土、钢材,以“粗犷的优雅”呼应德国工业遗产。

总结:三位一体的设计哲学
Hadi Teherani Architects 的理念可概括为:
① 建筑产品化(跨尺度整合) × ② 技术生态化(材料与气候创新) × ③ 空间叙事化(文脉与动态体验)。
其作品既是功能容器,亦是城市文化符号,持续探索“理性与诗意”的共生
如何不发帖就快速得到金币道行
 
我有我可以
快速回复
限120 字节
认真回复加分,灌水扣分~
 
上一个 下一个